Gyöngyös, Tűz utca

Alapterület137 m²

Telekterület232 m²

Szobák száma 4 + 1 fél

Irányár

35 900 000 FT


Egyéb tulajdonságok: tehermentes, zárt autóbeálló

Eladó Családi ház

Gyöngyös, Tűz utca, 137 m²-es, családi ház, 4+1 szobás, felújítandó állapotú

Gyöngyös északi részén tetőtér-beépítéses családi ház eladó!
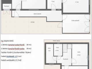
A csendes, átmenő forgalomtól mentes , tiszta , rendezett ,térköves útburkolatú utcában található 2 szintes családi házban 4,5 szoba valamint 2db konyha és 3 db tusolós fürdő helyiség került kialakításra. Az utcai kapubejárat zárt-fedett autóbeállási lehetőséget ad, a központi fűtéses ház 2 különálló lakrésze egy közös zárt üvegezett közlekedőből nyílik.
A Gyöngyös-i városi kórház 500 méteren belül , az autóbuszmegálló 800-méterre, a városközpont pár perc sétával könnyen megközelíthető.
VH7-1466


Elhelyezkedés: 3200, Gyöngyös, Tűz utca


  • Alapterület 137 m²
  • Telekterület 232 m²
  • Szobák száma 4
  • Félszobák száma 1
  • Szerkezet Egyéb, vegyes szerkezet
  • Állapot Felújítandó
  • Belsőállapot Felújítandó
  • Szintek száma 2
  • Szobák típusa Egybe- és különnyíló
  • Belmagasság 270 cm
  • WC-k száma 3
  • Fürdőszoba szám 3
  • Tetőtér Beépített
  • Fűtés típusa Radiátor fűtés
  • Közművek víz, villany, gáz, csatorna

Eladná ingatlanát?

Teljesen megértjük, hiszen az ingatlaneladás egy komoly döntés. Kérjen visszahívást, és mi kötöttségektől mentesen tájékoztatjuk Önt a legkedvezőbb lehetőségekről. Hozzáértő ingatlan tanácsadó kollégáink készséggel állnak rendelkezésére bármilyen kérdés kapcsán.

Kérem az ingyenes tanácsadást!

Ingatlan hírek

A funkció használatához be kell lépnie.

A funkció használatához be kell lépnie.

A funkció használatához be kell lépnie.