Gödöllő, Fenyves területi utca

Eladó Családi ház

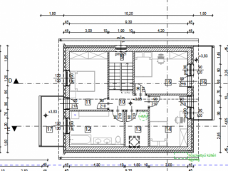
Gödöllő, Fenyves területi utca, 126 m²-es, családi ház, 5 szobás

Új építésű 155nm-es (lakóterület 109nm) önálló családi ház 515 m² telekkel!

Gödöllő Fenyves – nappali + 4 szobás, garázsos, új építésű családi ház eladó
Csendes, zöld környezetben, a MATE mögött, új aszfaltos utcában kínáljuk ezt a praktikus elosztású, A+ energetikájú otthont, ami ideális választás gyerekes családoknak.

Főbb jellemzők:
nappali + 4 külön nyíló szoba
kertkapcsolatos terasz
2 fürdőszoba (zuhany + kád)
garázs közvetlen kapcsolattal
413 m² saját kert

Műszaki tartalom:
hőszivattyú + H tarifa → alacsony rezsi
hűtés-fűtés rendszer
riasztó, biztonsági ajtó
motoros kapu előkészítés

Környék:
Óvoda, iskola, bolt, busz pár perc, vasútállomás közel.

Fontos:
új építés, 5% áfa
CSOK / hitel igénybe vehető
kerítés + beálló + kapu: +6,9 M Ft

További információval várom hívását a hét minden napján.


Elhelyezkedés: 2100, Gödöllő, Fenyves területi utca

Környezet: Új építésű családi házas övezet.

Közlekedés: Buszmegálló 6 perc séta távolságban, buszpályaudvar és HÉV 10 perc alatt elérhető.


  • Alapterület 126 m²
  • Telekterület 515 m²
  • Szobák száma 5
  • Szerkezet Tégla
  • Állapot Új építésű
  • Belsőállapot Új építésű
  • Tájolás d-k
  • Szintek száma 2
  • Építés éve 2025
  • Szobák típusa Külön nyíló
  • Belmagasság 265 cm
  • Konyhák száma 1
  • Konyha típusa Amerikai
  • WC-k száma 3
  • Fürdőszoba szám 2
  • Födém típusa Vasbeton
  • Tető típusa Agyag cserép
  • Tetőtér Beépített
  • Fűtés típusa Hőszivattyú
  • Melegvíz típusa Egyéb
  • Nyílászárók típusa Műanyag
  • Nyílászárók állapota új
  • Közművek víz, villany, csatorna
  • Energetikai besorolás A+

Eladná ingatlanát?

Teljesen megértjük, hiszen az ingatlaneladás egy komoly döntés. Kérjen visszahívást, és mi kötöttségektől mentesen tájékoztatjuk Önt a legkedvezőbb lehetőségekről. Hozzáértő ingatlan tanácsadó kollégáink készséggel állnak rendelkezésére bármilyen kérdés kapcsán.

Kérem az ingyenes tanácsadást!

Ingatlan hírek

A funkció használatához be kell lépnie.

A funkció használatához be kell lépnie.

A funkció használatához be kell lépnie.