Budapest XVIII. Kerület, Katona József utca

Alapterület115 m²

Telekterület556 m²

Szobák száma 4

Irányár

99 900 000 FT


Egyéb tulajdonságok: kamra, erkély (12 m²), pince, zárt autóbeálló


Eladó Családi ház

XVIII. Kerület, Katona József utca, 115 m²-es, családi ház, 4 szobás

Ahol a művészet és az otthon összefonódik

Bókaytelepen, a nyugalom és inspiráció szigetén, eladó egy különleges családi ház, amely nem csupán élettér, hanem egy valódi művészi menedék.
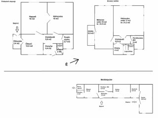
A 115 m²-es főépület tágas tereivel és egyedi atmoszférájával tökéletes környezetet biztosít az alkotáshoz és a feltöltődéshez. Négy szoba, étkező, két fürdőszoba, két erkély – mind úgy lett kialakítva, hogy harmóniát és fényt adjon a mindennapoknak.

A tetőtér igazi kincs egy festőművész által berendezett műterem, ahol a hatalmas ablakfelületeken át egész nap beáradó napfény tökéletes közeget teremt a kreatív alkotáshoz. A hálószoba pedig nem csupán pihenőhely, hanem maga a nyugodt inspiráció forrása.

A 556 m²-es, összközműves telek igazi oázis a természet szerelmeseinek: ásott kút biztosítja a kert varázsát, és a két erkélyről megcsodálhatók az évszakok festői váltakozásai. A ház 1954-ben épült masszív betonalapokra, majd 1987-ben tetőtér-beépítéses bővítésen esett át.

2017-ben egy melléképület fejlesztése is megvalósult, amely a nyári konyhát és a garázst foglalja magában, létrehozva egy kétszobás, gázkonvektoros fűtésű lakrészt – tökéletes műhelynek, vendégháznak vagy saját kis kreatív zugnak.

A kertben két gépkocsi számára elegendő parkolóhely biztosított, hogy az otthon kényelmét semmi se zavarja. A kerti eszközök és bútorok tárolására két tágas fészer áll rendelkezésünkre.

Két villanymérő és egy gázmérő gondoskodik a praktikus energiagazdálkodásról, akár gáz, akár elektromos fűtést preferálja. Jelenleg egy kombinált gázcirkó biztosítja a főépületben a ház melegét és meleg vizét.

Környezet
A Bókaytelep a kerület egyik legrégebbi városrésze, ahol jellemzően kertes házak épültek, elvétve egy-egy kisebb társasházat is lehet találni. A városrészen belül található a 16 hektáros Bókay-kert, amely a kerület egyik kedvelt, jól karban tartott közparkja Ezen a területen számos sportolásra, kikapcsolódásra, illetve szórakozásra alkalmas intézmény működik a tenisz- és focipályáktól kezdve a szabadtéri színpadon át a fedett és szabadtéri medencével rendelkező uszodáig.
Gyalogszerrel percekre több szupermarket, piac, egészségügyi intézmény, gyógyszertár, cukrászda, étterem és számos kisbolt érhető el. A kerületben bölcsődék, óvodák, általános- és középiskolák széles választéka lelhető fel.
A közeli Péterhalmi erdő nem csak kiránduláshoz, de a sportoláshoz is hatalmas teret kínál.

Közlekedés
Az ingatlan központi helyzetéből eredően nem csak a gépjárművel csatlakozhatunk gyorsan a város vérkeringésébe az Üllői úton vagy a Nagykőrösi úton keresztül, illetve az M5-ös autópálya vagy az M0-s autóút felé, de a tömegközlekedési csomópont, azaz a Szarvascsárda tér is egy-két perces sétára van csak. Ott az 50-es villamossal vagy a 136E buszjárattal érhetjük el a 3-as metrót, illetve számos más buszjárattal érhetjük el a kerület fontosabb csomópontjait, pl. a vasútállomásokat, vagy juthatunk el szomszédos kerületekbe, vagy akár Gyálra, Vecsésre is.

Ha egy inspiráló térre vágyik, ahol a művészet és az élet összefonódik, akkor ez az ingatlan Önre vár!


Elhelyezkedés: 1181, Budapest, XVIII. Kerület (Bókaytelep), Katona József utca

Környezet: családi házas

Közlekedés: 136E


  • Alapterület 115 m²
  • Telekterület 556 m²
  • Utcafronti szélesség 15 m
  • Szobák száma 4
  • Szerkezet Tégla
  • Állapot Átlagos
  • Belsőállapot Felújítandó
  • Tájolás Nyugati
  • Szintek száma 1
  • Fűtés költség (Átlag) 35 000 Ft / hónap
  • Építés éve 1955
  • Felújítás éve 1987
  • Szobák típusa Egybe- és különnyíló
  • Belmagasság 285 cm
  • Konyhák száma 1
  • Konyha típusa Ablakos konyha
  • WC-k száma 2
  • Fürdőszoba szám 2
  • Födém típusa Vasbeton
  • Tető típusa Agyag cserép
  • Tetőtér Beépített
  • Fűtés típusa Gázcirkó fűtés
  • Melegvíz típusa Cirkó
  • Nyílászárók típusa Fa
  • Nyílászárók állapota átlagos
  • Közművek víz, villany, gáz, csatorna
  • Energetikai besorolás H

Eladná ingatlanát?

Teljesen megértjük, hiszen az ingatlaneladás egy komoly döntés. Kérjen visszahívást, és mi kötöttségektől mentesen tájékoztatjuk Önt a legkedvezőbb lehetőségekről. Hozzáértő ingatlan tanácsadó kollégáink készséggel állnak rendelkezésére bármilyen kérdés kapcsán.

Kérem az ingyenes tanácsadást!

Ingatlan hírek

A funkció használatához be kell lépnie.

A funkció használatához be kell lépnie.

A funkció használatához be kell lépnie.