Budapest XV. Kerület, Késmárk utca

Bérleti díj

2 148 633 FT


Egyéb tulajdonságok: lift


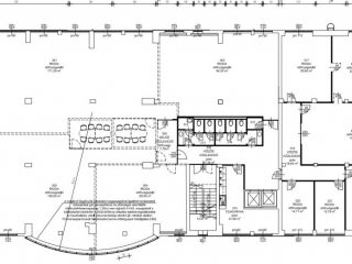
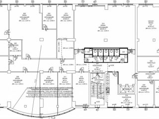
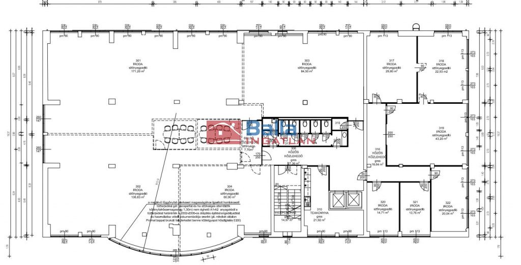
Közös területek: Étkező a földszinten, tárgyaló.


Teakonyha, WC, egyéb: Teakonyha minden emeleten, tárgyalók.


Kiadó B kategóriás iroda

XV. Kerület, Késmárk utca, 598 m²-es, b kategóriás iroda, felújított / újszerű állapotú

Kiadó egy teljes irodai szint egy modern, felújítás alatt álló irodaházban Budapest XV. kerületében. Az ingatlan a 3. emeleten található, alapterülete 598 m². Az irodaház 5 szintes, a felújítás során B+ energetikai besorolást kap, hőszivattyús hűtés-fűtéssel, lifttel, valamint korszerű műszaki tartalommal és átrendezett szintekkel.

A bérleti díj 9 EUR/m² + ÁFA, az üzemeltetési költség 1 800 Ft/m² + ÁFA. A bérléshez minimum 12 hónapos időszak szükséges, 1 havi bérleti díj és 2 havi kaució megfizetése mellett. A bérlemény 2025 költözhető.
Az irodaház portaszolgálattal rendelkezik, légkondicionált, és lehetőség van bérelhető udvari gépkocsi-beállók igénylésére. Az épületben többféle méretű iroda, üzlethelyiség és raktár is elérhető 12 m²-től akár 600 m²-ig.

További lehetőségként utcafronti üzlethelyiség vagy vendéglátóegység (pékség, kávézó, irodai kantin) kialakítása is szóba jöhet. A bérbeadó rugalmasan kezeli a bérlemény kialakításával és az egyedi igényekkel kapcsolatos egyeztetést.

Amennyiben további információra van szüksége vagy szeretné megtekinteni az ingatlant, kérem, keressen bizalommal.


Elhelyezkedés: 1156, Budapest, XV. Kerület (Újpalota), Késmárk utca

Környezet: Ideális irodai környezet, ipari és kereskedelmi ingatlanok szomszédságában, az újpalotai lakótelep mellet, a XVI. kerület határában!

Közlekedés: Busz: 231,277.


  • Alapterület 598 m²
  • Szobák száma 10
  • Szerkezet Acél
  • Állapot Felújított / Újszerű
  • Belsőállapot Felújított / Újszerű
  • Épület szintjeinek száma 5
  • Parkolás Saját parkoló biztosított
  • Parkoló bérleti díj 15 000 Ft / parkoló / hónap
  • Üzemeltetési költség 1 800 Ft / m² / hónap
  • Felújítás éve 2025
  • Belmagasság 265 cm

Eladná ingatlanát?

Teljesen megértjük, hiszen az ingatlaneladás egy komoly döntés. Kérjen visszahívást, és mi kötöttségektől mentesen tájékoztatjuk Önt a legkedvezőbb lehetőségekről. Hozzáértő ingatlan tanácsadó kollégáink készséggel állnak rendelkezésére bármilyen kérdés kapcsán.

Kérem az ingyenes tanácsadást!

Ingatlan hírek

A funkció használatához be kell lépnie.

A funkció használatához be kell lépnie.

A funkció használatához be kell lépnie.