Budapest XIII. Kerület, Váci út

Eladó Üzlethelyiség utcai bejárattal

XIII. Kerület, Váci út, 329 m²-es, üzlethelyiség utcai bejárattal

Kiváló lehetőség cégeknek, vállalkozásoknak a 13. kerület központi részén!

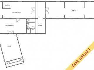
Eladó a Váci úton, a Dózsa György út és az Árpádhíd között egy dupla utcai bejáratos üzlethelyiség külön irodával és hatalmas pinceszinti raktárral.
A teljes ingatlan összesen 329 m², mely áll egy 45 m²-es üzlethelyiségből, egy 20 m²-es irodából, illetve a pinceszinten egy 264 m²-es raktárból. A teljes terület ezen egységek egybenyitásával jött létre. A fűtésről, és a meleg víz ellátásáról modern gázkazán gondoskodik, minden fogyasztásmérők alapján fizetendő. Az ingatlannak négy bejárata van, kettő az utcáról nyílik, kettő pedig a társasház udvaráról (külön az irodának, és külön a pinceszintnek). Az alsó szinten kialakításra került még egy irodahelyiség, külön mellékhelyiségek, két bemutató terem és raktárhelyiségek is.

Az ingatlan per és tehermentes, cég tulajdonában van, a teljes terület egyben kerül értékesítésre. Az eladás valamelyest sürgős, ezért az ár természetesen alkuképes.

Várom megkeresését, bármely egyéb kérdésben állok rendelkezésére az ingatlannal kapcsolatban, akár hétvégén is.


Elhelyezkedés: 1133, Budapest, XIII. Kerület (Angyalföld), Váci út

Környezet: Jól megközelíthelyő helyen, a Dózsa György út és az Árpáhídi felüljáró között.

Közlekedés: M3 metró


  • Alapterület 329 m²
  • Szobák száma 8
  • Raktár és egyéb terület 264 m²
  • Szerkezet Tégla
  • Állapot Részben felújított
  • Belsőállapot Részben felújított
  • Épület szintjeinek száma 2
  • Parkolás Épület előtt fizetős
  • Építés éve 1950
  • Belmagasság 3 m

Eladná ingatlanát?

Teljesen megértjük, hiszen az ingatlaneladás egy komoly döntés. Kérjen visszahívást, és mi kötöttségektől mentesen tájékoztatjuk Önt a legkedvezőbb lehetőségekről. Hozzáértő ingatlan tanácsadó kollégáink készséggel állnak rendelkezésére bármilyen kérdés kapcsán.

Kérem az ingyenes tanácsadást!

Ingatlan hírek

A funkció használatához be kell lépnie.

A funkció használatához be kell lépnie.

A funkció használatához be kell lépnie.