Budapest XI. Kerület, Etele út

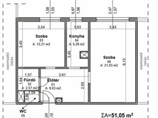
Alapterület51 m²

Szobák száma 2

Bérleti díj

230 000 FT
+2 hónap kaució


Egyéb tulajdonságok: lift (2 db), fan-coil, külön étkező, külön wc, erkély (3 m²)


Kiadó Társasházi lakás

XI. Kerület, Etele út, 51 m²-es, társasházi lakás, 2 szobás, átlagos állapotú

Bikás park mellett, erkélyes otthon – költözz azonnal!

Budapest XI. kerületében, az Etele úton, a Bikás park közvetlen közelében kiadó egy 51 nm-es, VII. emeleti, 2 külön nyíló szobás, kifejezetten világos és csendes panellakás. Az ingatlan erkéllyel rendelkezik, panelprogramos, rendezett házban található, kiváló közlekedéssel.
A környék minden adott a kényelmes mindennapokhoz: Bikás park, Kelenföldi pályaudvar, Allee Bevásárlóközpont és az M4 metró néhány percen belül elérhető.

A lakás bútorozottan és teljesen gépesítve kiadó, azonnal költözhető állapotban. Kisállat megbeszélés szerint hozható. Parkolás az utcán fizetős övezetben, bejelentkezési lehetőséggel.

A bérleti díj 230 000 Ft/hó + rezsi, a közös költség 22 000 Ft. Beköltözéshez 2 havi kaució és közjegyzői nyilatkozat szükséges.

Ha egy jó elhelyezkedésű, élhető, erkélyes lakást keres a XI. kerületben, ezt érdemes megnézni – ritkán elérhető kombináció!


Elhelyezkedés: 1116, Budapest, XI. Kerület (Kelenföld), Etele út

Környezet: Lakótelepi környezet, központi elhelyezkedés

Közlekedés: Központi elhelyezkedés, pár perc sétára a tömegközlekedéstől.


  • Alapterület 51 m²
  • Szobák száma 2
  • Lakcím bejelentés Megoldható
  • Bútorozott Teljesen
  • Gépesített Igen
  • Állat tartása Engedélyezett
  • Szerkezet Panel (panelprogramos)
  • Állapot Átlagos
  • Társasház állapota
  • Tájolás nyugat
  • Társasház szintjei 10 emeletes
  • Közös költség (Vízdíj nélkül) 22 000 Ft / hónap
  • Fűtés költség (Átlag) 8 000 Ft / hónap
  • Szobák típusa Külön nyíló
  • Belmagasság 265 cm
  • Konyhák száma 1
  • Konyha típusa Ablakos konyha
  • WC-k száma 1
  • Fürdőszoba szám 1
  • Födém típusa Vasbeton
  • Fűtés típusa Házközponti fűtés egyedi mérőórákkal
  • Melegvíz típusa Távhő
  • Nyílászárók típusa Műanyag
  • Nyílászárók állapota

Eladná ingatlanát?

Teljesen megértjük, hiszen az ingatlaneladás egy komoly döntés. Kérjen visszahívást, és mi kötöttségektől mentesen tájékoztatjuk Önt a legkedvezőbb lehetőségekről. Hozzáértő ingatlan tanácsadó kollégáink készséggel állnak rendelkezésére bármilyen kérdés kapcsán.

Kérem az ingyenes tanácsadást!

Ingatlan hírek

A funkció használatához be kell lépnie.

A funkció használatához be kell lépnie.

A funkció használatához be kell lépnie.