Budapest VIII. Kerület, Százados út

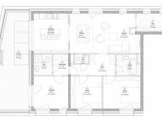
Alapterület125 m²

Szobák száma 4

Irányár

306 750 000 FT


Egyéb tulajdonságok: tehermentes, akadálymentes, lift (1 db), fan-coil, külön wc, gardróbszoba, terasz (33 m²), garázs


Extrák: PENTHOUSE - A város felett!<br /> 530 lakás - 108,12 nm + 33,12 nm terasz.<br /> Hasznos alapterület: 124,68 nm<br /> <br /> PENTHOUSE - Above the city!<br /> 530 apartments - 108.12 sqm + 33.12 sqm terrace.<br /> Usable floor area: 124.68 sqm


Eladó Társasházi lakás

VIII. Kerület, Százados út, 125 m²-es, társasházi lakás, 4 szobás

SZÁZADOS NEGYED
ZUGLÓI HANGULAT A BELVÁROS KÖZELÉBEN!

PENTHOUSE - A város felett!
530 lakás - 108,12 nm + 33,12 nm terasz.
Hasznos alapterület: 124,68 nm

ÉPÜLET, LAKÁSOK
30 lakás és egy üzlet kerül kialakításra, melyekhez 32 db parkolóhely kapcsolódik.
A gépkocsi-beállók közül 11 elektromos töltésre alkalmas.

FINANSZÍROZÁS
A feltüntetett vételár önerőből történő vásárlás esetén értendő, szakaszos fizetés mellett.
Hitelfelvétel esetén a vételár pár százalékkal emelkedik.
Kérjen ajánlatot értékesítő kollégánktól!

MODERN ÉPÍTÉSI TECHNOLÓGIA
A falak és födémek előregyártott Leier kéregfal (LKF) elemekből készülnek.
A Leier-rendszer előnyei:
• megbízható hang- és hővédelem
• nagy felhasználói komfort és hosszú távú értékmegőrzés
• energiatakarékosság – kisebb fűtési/hűtési igény, kevesebb rezsi

KÖRNYEZETTUDATOS, ALACSONY ENERGIA IGÉNYŰ OKOS OTTHONOK
A beruházó nagy hangsúlyt fektet a minőségi fenntartható és környezettudatos otthonok kialakítására. Az egyedi hőszivattyús hűtés-fűtés megoldásnak, illetve fokozott hőszigetelésnek köszönhetően a lakások energiaigénye minimális.

KIS LAKÁSSZÁM – BARÁTSÁGOS KÖRNYEZET
A kis lakásszámú társasházak barátságosabb, kellemesebb lakókörnyezetet biztosítanak.
Ezt az érzést fokozza az épületen belüli zöldfelület-kialakítás.

PENTHOUSE – BELVÁROSI LUXUS
Megengedhet magának egy kis luxust, de nem szeretne kiköltözni a belvárosból?
Vásárolja meg az 5. emeleten kialakított három egyedülálló ingatlanunk egyikét!
Hatalmas panorámás terasz, jakuzzi, szauna, csend és nyugalom a város felett.


Elhelyezkedés: 1087, Budapest, VIII. Kerület (Századosnegyed), Százados út

Környezet: >>> SZÁZADOS NEGYED <<< A Százados negyed nyugodt életet kínál a belvárosi nyüzgéstől 15 percre. A közelben sportlétesítmények (MTK Stadion, BKV Előre Sporttelep, Puskás Ferenc Stadion, Papp László Sportaréna), vásárlási lehetőség (LIDL, Penny Market, Arána Pláza), lakó és iroda épületek találhatóak. A szomszédos Centuria Ház pár éve épült.

Közlekedés: Kiváló tömegközlekedés minden irányba: A Puskás Ferenc Sradion és a Népliget Metro megálló az 1-es villamossal pár perc alatt elérhető. A 37-e villamossal 15 perc alatt a Blaha Lujza téren lehetünk. Autósoknak számos fő útvonal (Kerepesi út - Hungária körút - Kőbányai út) áll rendelkezésre.


  • Alapterület 125 m²
  • Szobák száma 4
  • Szerkezet Egyéb
  • Állapot Új építésű
  • Társasház állapota Új építésű
  • Tájolás NY-É-K
  • Lakások / házrészek száma 30
  • Társasház szintjei 5 emeletes
  • Építés éve 2026
  • Szobák típusa Egybe- és különnyíló
  • Belmagasság 263 cm
  • Konyhák száma 1
  • Konyha típusa Amerikai
  • WC-k száma 2
  • Fürdőszoba szám 2
  • Fűtés típusa Egyéb
  • Melegvíz típusa Központi
  • Nyílászárók típusa Műanyag
  • Nyílászárók állapota új
  • Energetikai besorolás A+

Eladná ingatlanát?

Teljesen megértjük, hiszen az ingatlaneladás egy komoly döntés. Kérjen visszahívást, és mi kötöttségektől mentesen tájékoztatjuk Önt a legkedvezőbb lehetőségekről. Hozzáértő ingatlan tanácsadó kollégáink készséggel állnak rendelkezésére bármilyen kérdés kapcsán.

Kérem az ingyenes tanácsadást!

Ingatlan hírek

A funkció használatához be kell lépnie.

A funkció használatához be kell lépnie.

A funkció használatához be kell lépnie.