Velence, Adria körút

Alapterület91 m²

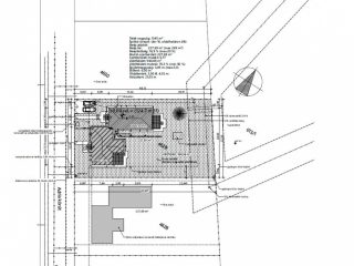
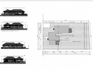
Telekterület694 m²

Szobák száma 4

Irányár

114 900 000 FT


Egyéb tulajdonságok: tehermentes, geotermikus fűtés, gardróbszoba


Extrák: lakóparki környezet


Eladó Ikerház

Velence, Adria körút, 91 m²-es, ikerház, 4 szobás, kiváló állapotú

VELENCE – BENCE-HEGY LÁBÁNÁL új építésű nettó 91,25 m² (113,07 m² bruttó) ikerház ELADÓ 694 m²-es saját kerttel.

Ideális beosztás: Amerikai konyhás nappali + 3 szoba + fürdőszoba + mosókonyha.
Energiatakarékos: padlófűtés - 10 KW-os hőszivattyú + 12 cm modern szigetelés + műanyag hangszigetelt nyílászárók.

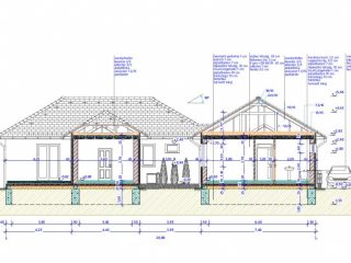
Stabil szerkezet: 30-as POROTHERM Téglafal + 10 cm válaszfalak – betongerendás födém

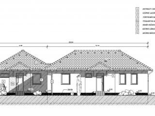
Modern megjelenés: Fehér falak és burkolatok - fekete terrán cserép, színezett bádogozással (választási lehetőség hideg és meleg burkolatoknál)

Referencia ingatlan megtekinthető (lásd képek)

Kiváló helyi adottságok: minden a közelben - boltok, üzletek, buszmegálló, autópálya.

Velencei tó egy kilométer.

Szeressen bele és vegye meg, amíg kapható!


Elhelyezkedés: 2481, Velence (Velence), Adria körút

Környezet: csendes lakópark

Közlekedés:


  • Alapterület 91 m²
  • Telekterület 694 m²
  • Utcafronti szélesség 18 m
  • Szobák száma 4
  • Szerkezet Csúsztatott zsalus
  • Állapot Kiváló
  • Belsőállapot Kiváló
  • Tájolás ÉNY-DK
  • Szintek száma 1
  • Építés éve 2025
  • Szobák típusa Egybe- és különnyíló
  • Belmagasság 270 cm
  • Konyhák száma 1
  • Konyha típusa Amerikai
  • WC-k száma 1
  • Fürdőszoba szám 1
  • Födém típusa Vasbeton
  • Tető típusa Agyag cserép
  • Tetőtér Nem beépíthető
  • Fűtés típusa Padlófűtés
  • Melegvíz típusa Egyéb
  • Nyílászárók típusa Műanyag
  • Nyílászárók állapota új
  • Közművek víz, villany, gáz, csatorna

Eladná ingatlanát?

Teljesen megértjük, hiszen az ingatlaneladás egy komoly döntés. Kérjen visszahívást, és mi kötöttségektől mentesen tájékoztatjuk Önt a legkedvezőbb lehetőségekről. Hozzáértő ingatlan tanácsadó kollégáink készséggel állnak rendelkezésére bármilyen kérdés kapcsán.

Kérem az ingyenes tanácsadást!

Ingatlan hírek

A funkció használatához be kell lépnie.

A funkció használatához be kell lépnie.

A funkció használatához be kell lépnie.