Tiszakécske, Fürdő utca

Alapterület49 m²

Telekterület800 m²

Szobák száma 2

Irányár

38 600 000 FT


Egyéb tulajdonságok: terasz

Eladó Családi ház

Tiszakécske, Fürdő utca, 49 m²-es, családi ház, 2 szobás, kiváló állapotú

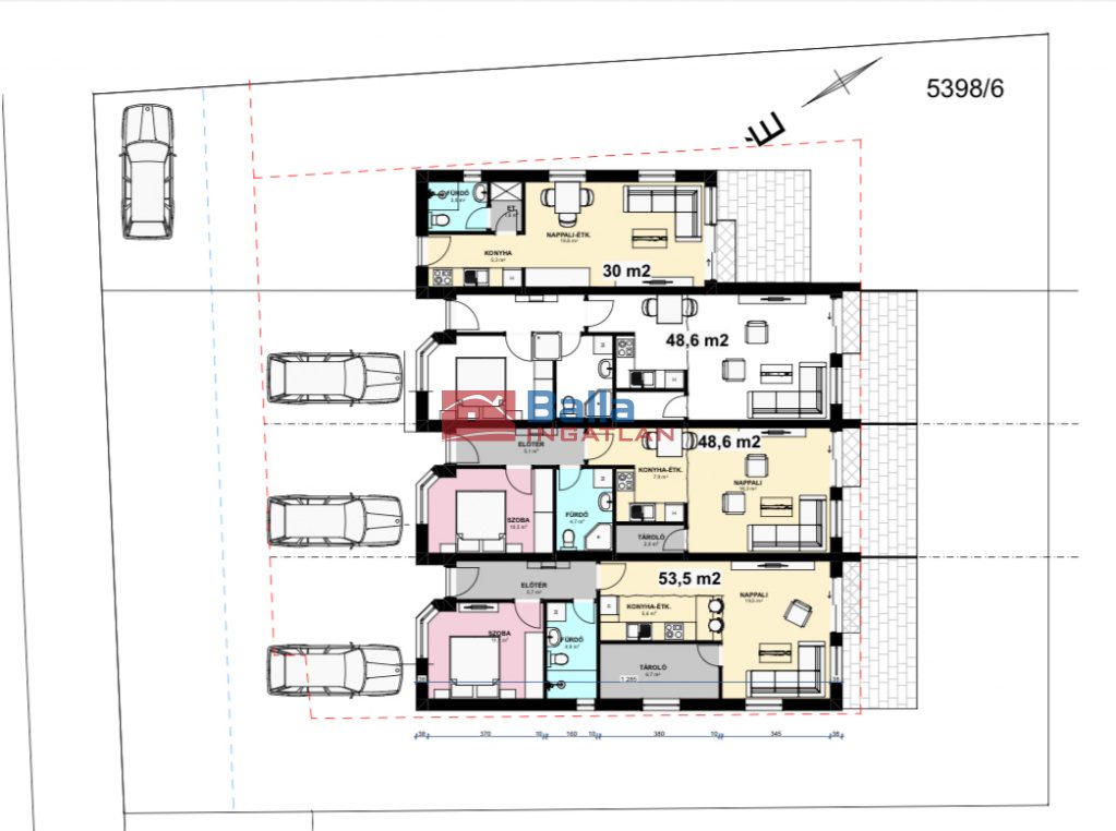
Tiszakécskén a Fürdő utcában /nyaraló övezet szívében/, új építésű, CSALÁDI HÁZ besorolású, ingatlanok, ELADÓK! Az ingatlanok 30 m2 -53,5 m2 es méretben kerülnek kialakításra. Tégla falazat, cseréptetős, szigetelt, napelem + padlófűtés. A legmodernebb szabványnak megfelelően kerülnek kialakításra. ÁTADÁS: 2026. Őszén.


Elhelyezkedés: 6060, Tiszakécske, Fürdő utca


  • Alapterület 49 m²
  • Telekterület 800 m²
  • Szobák száma 2
  • Szerkezet Tégla
  • Állapot Kiváló
  • Belsőállapot Kiváló
  • Szintek száma 1
  • Belmagasság 280 cm
  • Konyha típusa Amerikai
  • Tetőtér Nem beépíthető
  • Fűtés típusa Padlófűtés
  • Nyílászárók típusa Műanyag
  • Közművek víz, villany

Eladná ingatlanát?

Teljesen megértjük, hiszen az ingatlaneladás egy komoly döntés. Kérjen visszahívást, és mi kötöttségektől mentesen tájékoztatjuk Önt a legkedvezőbb lehetőségekről. Hozzáértő ingatlan tanácsadó kollégáink készséggel állnak rendelkezésére bármilyen kérdés kapcsán.

Kérem az ingyenes tanácsadást!

Hasonló ingatlanok kínálatunkból

Eladó 95 m²-escsaládi ház Tiszakécske, Dr. Tóth Géza utca: 61'750'000 Ft Eladó 21

Tiszakécske, Dr. Tóth Géza utca, 95 m²-es, családi ház, 3 szobás

95 m² terület 3 szoba

Családi ház

61 800 000 Ft

Eladó 145 m²-escsaládi ház Tiszakécske, Táncsics Mihály utca: 41'900'000 Ft Eladó 15
Eladó 116 m²-escsaládi ház Tiszakécske, Jókai utca: 37'000'000 Ft Eladó 19

Tiszakécske, Jókai utca, 116 m²-es, családi ház, 3+3 szobás

116 m² terület 3 + 3 félszoba

Családi ház

37 000 000 Ft

Ingatlan hírek

A funkció használatához be kell lépnie.

A funkció használatához be kell lépnie.

A funkció használatához be kell lépnie.