Szigetszentmiklós, Boglya utca

Alapterület170 m²

Telekterület909 m²

Szobák száma 6 + 2 fél

Irányár

128 000 000 FT


Egyéb tulajdonságok: tehermentes, azonnal költözhető, kandalló, külön wc, gardróbszoba, kamra, loggia (10 m²), terasz (16 m²), szuterén, garázs, zárt autóbeálló


Eladó Családi ház

Szigetszentmiklós, Boglya utca, 170 m²-es, családi ház, 6+2 szobás

Egy külön világ Szigetszentmiklóson - tágas, otthonos, szerethető családi ház a Boglya utcában
Van egy ház Szigetszentmiklóson, amely már az első pillanatban különlegesnek tűnik. A Boglya utca elején, egy három utcával határolt, 909 m²-es saroktelken áll – mintha egy saját kis sziget lenne a városban. Csupán egyetlen közvetlen szomszédja van, így a kertben állva valódi nyugalom és térérzet fogadja az embert. A telek két oldalról autóval is megközelíthető, egyik oldalon pedig egy széles, több mint 20 m²-es betonozott beálló várja az érkezőket.
Ez a ház nem csupán egy épület: egy gondosan karbantartott, szeretettel működtetett otthon, amelynek minden szintje más-más hangulatot kínál.
A ház - tágas terek, otthonos hangulat
A háromszintes épület stabil, megbízható alapokon áll. A hőszigetelt nyílászárók, a korszerűsített gépészet és a gázkazán fűtés gondoskodnak a kényelmes mindennapokról, a nappaliban pedig egy cserépkályha adja meg a téli esték meghitt melegét.
A szuterén - 100 m² lehetőség
A teljes alsó szint egy külön világ: garázs szerelőaknával, műhely, tárolók – minden adott ahhoz, hogy valaki itt élje ki a hobbijaiban rejlő kreativitást, vagy akár vállalkozást működtessen.
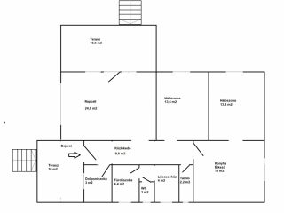
A földszint - a családi élet központja
A 90 m²-es lakótér 280 cm-es belmagassággal tágas, levegős érzetet ad. A 25 m²-es nappaliból kilépve egy 16 m²-es teraszra jutunk, ahol reggeli kávé mellett hallani lehet a kert halk neszeit. A nagy étkezős konyha igazi találkozóhely: itt könnyű elképzelni a közös főzéseket, ünnepi vacsorákat. Két hálószoba és egy dolgozószoba teszi teljessé a szintet, utóbbi akár újra vizes helyiséggé alakítható.
Az emelet - a nyugalom szigete
A tetőtér 80 m²-es lakótere kellemes belmagassággal rendelkezik. Három nagy hálószoba, egy külön gardrób, fürdőszoba és WC található itt - minden adott ahhoz, hogy a család minden tagja megtalálja a saját, csendes zugát.
A kert - ahol a természet és a pihenés találkozik
A telek igazi kertvárosi álom: két utcáról is be lehet állni, akár 4–5 autóval is. A kert egyik sarkában egy 60 m²-es térkövezett rész várja a nagyobb családi eseményeket - akár egy kisebb esküvő is elférne itt.
A kert ékköve azonban a gondosan megtervezett, professzionálisan kivitelezett kerti tó. Gazdag növény- és állatvilága, a víz halk csobogása és a körülötte lévő zöldek olyan hangulatot teremtenek, mintha egy privát arborétumban járnánk. A tó mellett grillező és pihenőzóna teszi teljessé a kert élményét.
A környék - csendes, barátságos, élhető
A Boglya utca Szigetszentmiklós egyik nyugodt, családi házas része. A környék rendezett, barátságos, a forgalom minimális. A közelben minden megtalálható, ami a kényelmes mindennapokhoz kell:
• óvoda, iskola, bölcsőde
• élelmiszerboltok, kisebb üzletek
• orvosi rendelő, gyógyszertár
• játszóterek, parkok, a városi tó
Közlekedés - gyors kapcsolat Budapesttel
A helyi buszmegálló néhány perc sétára található, az M0-s autóút pedig mindössze pár percre van, így Budapest 10–15 perc alatt elérhető. A HÉV-megálló is könnyen megközelíthető, így azoknak is ideális, akik tömegközlekedéssel járnak a fővárosba.


Elhelyezkedés: 2310, Szigetszentmiklós, Boglya utca

Környezet: főút mellett, családi házas

Közlekedés: HÉV


  • Alapterület 170 m²
  • Telekterület 909 m²
  • Utcafronti szélesség 80 m
  • Szobák száma 6
  • Félszobák száma 2
  • Szerkezet Tégla
  • Állapot
  • Belsőállapot
  • Tájolás D
  • Lakások / házrészek száma 1
  • Szintek száma 2
  • Fűtés költség (Átlag) 25 000 Ft / hónap
  • Építés éve 2003
  • Felújítás éve 2020
  • Szobák típusa Egybe- és különnyíló
  • Belmagasság 280 cm
  • Konyhák száma 1
  • Konyha típusa Étkezős
  • WC-k száma 2
  • Fürdőszoba szám 2
  • Födém típusa Vasbeton
  • Tető típusa Agyag cserép
  • Tetőtér Beépíthető
  • Fűtés típusa Gázcirkó fűtés
  • Melegvíz típusa Cirkó
  • Nyílászárók típusa Műanyag
  • Nyílászárók állapota
  • Közművek víz, villany, gáz, csatorna

Eladná ingatlanát?

Teljesen megértjük, hiszen az ingatlaneladás egy komoly döntés. Kérjen visszahívást, és mi kötöttségektől mentesen tájékoztatjuk Önt a legkedvezőbb lehetőségekről. Hozzáértő ingatlan tanácsadó kollégáink készséggel állnak rendelkezésére bármilyen kérdés kapcsán.

Kérem az ingyenes tanácsadást!

Ingatlan hírek

A funkció használatához be kell lépnie.

A funkció használatához be kell lépnie.

A funkció használatához be kell lépnie.