Siófok, Ezustparti utca

Eladó Társasházi lakás

Siófok, Ezustparti utca, 60 m²-es, társasházi lakás, 3 szobás

A Balla Ingatlan siófoki irodájának ajánlatában.
SIÓFOKON, EZÜSTPARTON ,szabadstrandhoz közel, vízparttól 8 perc sétára 4 lakásos apartmanház eladó.

A téglaépítésű ,igényes ingatlanok saját autóbeállóval rendelkeznek. Magas minőségű anyagok, időtálló műszaki tartalom.

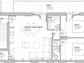
Emelet/Jobb/ apartman
NETTÓ: 60 m2 /ERKÉLY: 15.15 m2 / KERT: 0 m2
Amerikai konyhás nappali, 2 szoba, fürdőszoba, külön mellékhelyiség, közlekedő, kamra.
Hőszivattyús padlófűtés, hűtő-fűtő klíma. Vízellátás villanybojler. Egyedi mérőórák (3x16 a áramellátás)3 rétegű hőszigetelt műanyag nyílászárók, rejtett , automata vezérlésű alumínium redőnyökkel árnyékolva. Szigetelt épület körül parkosított kertben automata öntözőrendszer. Kaputelefon, kamerarendszer. 1 autóbeálló.
(További parkolóhely vásárlására is van lehetőség/2.500.000 Ft)

Átadás: 2025.06.
Kérdéseivel keressen bizalommal!

M7 autópályáról, 7-es főútról személygépkocsival, autóbusszal elérhető ingatlan. Helyi tömegközlekedés, kerékpárút kiépített. Városközpont 3.6 km.


Elhelyezkedés: 8600, Siófok (Ezüstpart), Ezustparti utca

Környezet: A Siófok Ezüstparton , a vízparttól 8 perc sétára ingyenes és szépen karbantartott szabadstrand várja a Balaton szerelmeseit.

Közlekedés: Személygépkocsival, helyi tömegközlekedéssel elérhető ingatlan. Kerékpárút.


  • Alapterület 60 m²
  • Szobák száma 3
  • Szerkezet Tégla új építésű
  • Állapot Kiváló
  • Társasház állapota Kiváló
  • Lakások / házrészek száma 4
  • Társasház szintjei 1 emeletes
  • Építés éve 2023
  • Szobák típusa Külön nyíló
  • Belmagasság 270 cm
  • Konyhák száma 1
  • Konyha típusa Amerikai
  • WC-k száma 1
  • Fürdőszoba szám 1
  • Födém típusa Vasbeton
  • Fűtés típusa Házközponti fűtés egyedi mérőórákkal
  • Melegvíz típusa Villanybojler
  • Nyílászárók típusa Műanyag
  • Nyílászárók állapota Kiváló

Eladná ingatlanát?

Teljesen megértjük, hiszen az ingatlaneladás egy komoly döntés. Kérjen visszahívást, és mi kötöttségektől mentesen tájékoztatjuk Önt a legkedvezőbb lehetőségekről. Hozzáértő ingatlan tanácsadó kollégáink készséggel állnak rendelkezésére bármilyen kérdés kapcsán.

Kérem az ingyenes tanácsadást!

Ingatlan hírek

A funkció használatához be kell lépnie.

A funkció használatához be kell lépnie.

A funkció használatához be kell lépnie.