Siófok, EZÜSTPART

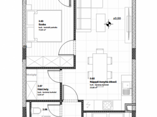
Alapterület61 m²

Szobák száma 2 + 1 fél

Irányár

117 300 000 FT


Egyéb tulajdonságok: tehermentes, lift (1 db), fan-coil, külön wc, terasz (15 m²), zárt autóbeálló


Extrák: Közvetlen vízpart<br /> Hőszivattyú<br /> D3


Eladó Társasházi lakás

Siófok, EZÜSTPART, 61 m²-es, társasházi lakás, 2+1 szobás, kiváló állapotú

A BALLA INGATLAN siófoki irodája KÖZVETLEN VÍZPARTI ingatlanokat kínál SIÓFOK EZÜSTPARTON.

Földszintes, 61 m2,15 m2 terasz, 2+1 szoba, É tájolás.
A Balaton szerelmesei második otthonra lelnek, akár egész évben élvezhetik a korszerű apartmanok kényelmét. Igényes tervezés, minőségi kivitelezés következtében a lakások remek kihasználhatósággal, értékállósággal rendelkeznek.
A Balatonra merőlegesen épülő Villapark II. ütemében 32 téglalakás kerül kivitelezésre. Tetején exkluzív panorámás tetőteraszok, áram-és vízvételi lehetőséggel. Magas minőségű anyagok fémjelzik az építkezést.
-Önálló kültéri egységgel rendelkező hőszivattyú. Hűt-fűt.
-Homlokzatán 15 cm DRYVIT.
-Önálló vízmennyiség mérő.
-Műanyag háromrétegű hőszigetelt üveges nyílászáró.
-Elektromos redőnyök helyének hálózat, telefon csatlakozóhely, riasztó hely kialakítása.
-Kaputelefon.
-Távirányítós kapubejáró.
-Viacolor burkolattal épült kocsibeálló.
-4x9 m /1.2 méter mély fűtött medence

Keressen bizalommal!


Elhelyezkedés: 8600, Siófok, EZÜSTPART

Környezet: Siófok Ezüstpart részén található új építésű ingatlan.

Közlekedés: Megközelíthető Budapestről és Nagykanizsa felől az M7-es autópályán, vagy a 7-es számú főútvonalon, Tamási és Szekszárd felől pedig a 65-ös számú főútvonalon. Vasúti csomópontként Balatonszéplak-felső megállóhely. Autóbusszal. Vízi úton a Balaton északi partjával (Balatonfüred), a Tihanyi-félszigettel és a nyugati medence kikötőivel van összeköttetése. Siófok Kiliti városrészének közelében található a Siófok-Kiliti repülőtér.


  • Alapterület 61 m²
  • Szobák száma 2
  • Félszobák száma 1
  • Szerkezet Tégla új építésű
  • Állapot Kiváló
  • Társasház állapota Kiváló
  • Tájolás K
  • Lakások / házrészek száma 32
  • Társasház szintjei 2 emeletes
  • Építés éve 2025
  • Szobák típusa Külön nyíló
  • Belmagasság 270 cm
  • Konyhák száma 1
  • Konyha típusa Amerikai
  • WC-k száma 1
  • Fürdőszoba szám 1
  • Födém típusa Vasbeton
  • Fűtés típusa Egyéb
  • Melegvíz típusa Egyéb
  • Nyílászárók típusa Műanyag
  • Nyílászárók állapota Kiváló

Eladná ingatlanát?

Teljesen megértjük, hiszen az ingatlaneladás egy komoly döntés. Kérjen visszahívást, és mi kötöttségektől mentesen tájékoztatjuk Önt a legkedvezőbb lehetőségekről. Hozzáértő ingatlan tanácsadó kollégáink készséggel állnak rendelkezésére bármilyen kérdés kapcsán.

Kérem az ingyenes tanácsadást!

Ingatlan hírek

A funkció használatához be kell lépnie.

A funkció használatához be kell lépnie.

A funkció használatához be kell lépnie.