Siófok, EZÜSTPART

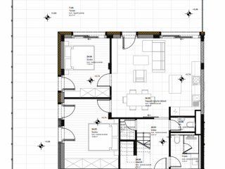
Terület101 m²

Szobák száma 4 + 1 fél

Irányár

215 900 000 FT


Egyéb tulajdonságok: tehermentes, fan-coil, külön wc, erkély (18 m²), terasz (50 m²)


Extrák: Tetőkert, nagy terasz.<br /> Közvetlen vízpart.<br /> Parkoló vásárolható


Eladó Társasházi lakás

Siófok, EZÜSTPART, 101 m²-es, társasházi lakás, 4+1 szobás, kiváló állapotú

A BALLA INGATLAN siófoki irodája KÖZVETLEN VÍZPARTI ingatlanokat kínál SIÓFOK EZÜSTPARTON.

https://youtu.be/MJAiuIXEsSc
A Balaton szerelmesei második otthonra lelnek, akár egész évben élvezhetik a korszerű apartmanok kényelmét. Igényes tervezés, minőségi kivitelezés következtében a lakások remek kihasználhatósággal, értékállósággal rendelkeznek.
A Balatonra merőlegesen épülő Villapark II. ütemében 29 téglalakás kerül kivitelezésre. Tetején exkluzív panorámás tetőteraszok, áram-és vízvételi lehetőséggel. Magas minőségű anyagok fémjelzik az építkezést.
-Önálló kültéri egységgel rendelkező hőszivattyú. Hűt-fűt.
-Homlokzatán 15 cm DRYVIT.
-Önálló vízmennyiség mérő.
-Műanyag háromrétegű hőszigetelt üveges nyílászáró.
-Elektromos redőnyök helyének hálózat, telefon csatlakozóhely, riasztó hely kialakítása.
-Kaputelefon.
-Távirányítós kapubejáró.
-Viacolor burkolattal épült kocsibeálló.
-4x9 m /1.2 méter mély fűtött medence
117 m2 nagyságú alapterülettel, 65 m2 terasszal, 15 m2 tetőterasszal eladó lakás.

Keressen bizalommal!


Elhelyezkedés: 8600, Siófok, EZÜSTPART

Környezet: Siófok Ezüstpart részén található új építésű ingatlan.

Közlekedés: Megközelíthető Budapestről és Nagykanizsa felől az M7-es autópályán, vagy a 7-es számú főútvonalon, Tamási és Szekszárd felől pedig a 65-ös számú főútvonalon. Vasúti csomópontként Balatonszéplak-felső megállóhely. Autóbusszal. Vízi úton a Balaton északi partjával (Balatonfüred), a Tihanyi-félszigettel és a nyugati medence kikötőivel van összeköttetése. Siófok Kiliti városrészének közelében található a Siófok-Kiliti repülőtér.


  • Alapterület 101 m²
  • Szobák száma 4
  • Félszobák száma 1
  • Szerkezet Tégla új építésű
  • Állapot Kiváló
  • Társasház állapota Kiváló
  • Tájolás Ny és É
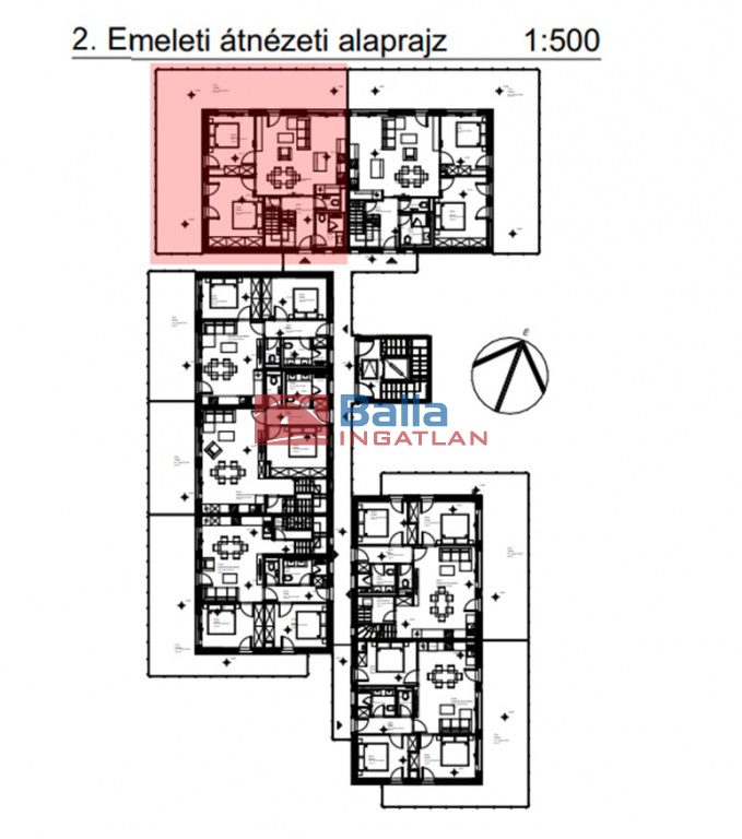
  • Lakások / házrészek száma 32
  • Társasház szintjei 3 emeletes
  • Építés éve 2024
  • Szobák típusa Külön nyíló
  • Belmagasság 270 cm
  • Konyhák száma 1
  • Konyha típusa Amerikai
  • WC-k száma 1
  • Fürdőszoba szám 1
  • Födém típusa Vasbeton
  • Fűtés típusa Egyéb
  • Melegvíz típusa Egyéb
  • Nyílászárók típusa Műanyag
  • Nyílászárók állapota Kiváló

Eladná ingatlanát?

Teljesen megértjük, hiszen az ingatlaneladás egy komoly döntés. Kérjen visszahívást, és mi kötöttségektől mentesen tájékoztatjuk Önt a legkedvezőbb lehetőségekről. Hozzáértő ingatlan tanácsadó kollégáink készséggel állnak rendelkezésére bármilyen kérdés kapcsán.

Kérem az ingyenes tanácsadást!

Ingatlan hírek

A funkció használatához be kell lépnie.

A funkció használatához be kell lépnie.

A funkció használatához be kell lépnie.