Siófok, Belváros

Alapterület105 m²

Telekterület160 m²

Szobák száma 3

Irányár

126 000 000 FT


Egyéb tulajdonságok: tehermentes, fan-coil, külön wc, garázs, zárt autóbeálló


Bővíthetőség: Kb 160 m2 saját kertkapcsolat.


Eladó Ikerház

Siófok, Belváros, 105 m²-es, ikerház, 3 szobás, kiváló állapotú

BEFEKTETÉS SIÓFOK BELVÁROSÁBAN!
IKERHÁZ GARÁZZSAL, NYITOTT ÉS FEDETT TERASSZAL, SAJÁT KERTRÉSSZEL ELADÓ!

SIÓFOK BELVÁROSÁBAN, rendezett, csendes, aszfaltos utcában 12 db ikerház kap helyet.
2386 m2 területen a hat különálló épület mind önálló helyrajzi számmal rendelkezve két ikerház kialakítására alkalmas. Nyugati tájolásának köszönhetően napos, világos otthon vár Önre.
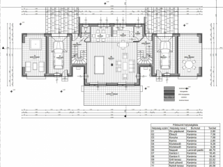
A magas minőségű anyagokból épülő téglaépület helyiségei:
FÖLDSZINTEN amerikai konyhás nappali (24.35+7.58 m2), külön mellékhelyiség (2.8 m2), közlekedő (9.28 m2), garázs (18.45 m2), nyitott (13.29 m2) és fedett (22.52 m2) terasz.
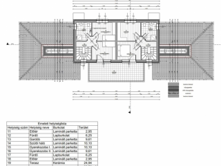
EMELETÉN 2 szoba (10.10m2 és 9.61 m2), fürdőszoba+WC (6.25 m2), előtér(2.95m2).
Saját kertrésszel rendelkezik( kb 160 m2), melyet ügyvédi használati megosztás biztosít.
A szigetelt, gázfűtéses, hűtő -fűtő klímával felszerelt otthonok építésére maga a kivitelező garancia, aki számos referencia munkával rendelkezik a környéken.
Ingatlan ára: 120.000.000.-Ft + 5% ÁFA
Átadás: 2025 és 2026

Jöjjön,nézze meg együtt a velem a már épülő projektet!

M7 autópályáról, 7-es számú főútvonalról két irányból megközelíthető.
Autóbusszal, vasúttal elérhető település. Saját kikötővel rendelkezik.
Iskolák, óvodák, kórház, gyógyszertárak, éttermek, bevásárlóközpontok, szabad és fizetős strandok.


Elhelyezkedés: 8600, Siófok, Belváros

Környezet: Családi házas övezetben ,nagy telken, új építésű ikerházak nyugati tájolással.

Közlekedés: M7 autópályáról, 7-es főútvonalról aszfaltos úton megközelíthető.


  • Alapterület 105 m²
  • Telekterület 160 m²
  • Szobák száma 3
  • Szerkezet Tégla
  • Állapot Kiváló
  • Belsőállapot Kiváló
  • Tájolás Ny
  • Szintek száma 2
  • Építés éve 2025
  • Szobák típusa Külön nyíló
  • Belmagasság 280 cm
  • Konyhák száma 1
  • Konyha típusa Amerikai
  • WC-k száma 2
  • Fürdőszoba szám 1
  • Födém típusa Vasbeton
  • Tetőtér Beépített
  • Fűtés típusa Gázcirkó fűtés
  • Nyílászárók típusa Műanyag
  • Közművek víz, villany, gáz, csatorna

Eladná ingatlanát?

Teljesen megértjük, hiszen az ingatlaneladás egy komoly döntés. Kérjen visszahívást, és mi kötöttségektől mentesen tájékoztatjuk Önt a legkedvezőbb lehetőségekről. Hozzáértő ingatlan tanácsadó kollégáink készséggel állnak rendelkezésére bármilyen kérdés kapcsán.

Kérem az ingyenes tanácsadást!

Ingatlan hírek

A funkció használatához be kell lépnie.

A funkció használatához be kell lépnie.

A funkció használatához be kell lépnie.