Nagykovácsi, Semmelweis utca

Alapterület219 m²

Telekterület730 m²

Szobák száma 5

Irányár

165 000 000 FT


Egyéb tulajdonságok: tehermentes, azonnal költözhető, külön wc, terasz (32 m²), pince, garázs, zárt autóbeálló, utcai parkolás


Eladó Családi ház

Nagykovácsi, Semmelweis utca, 219 m²-es, 2 generációs, családi ház

Eladó Nagykovácsiban a Sebestyén-dombon, az Amerikai Iskola mögött és felett egy 730 ㎡-es összközműves telken fekvő 219 ㎡ alapterületű családi ház.
A ház a ’80-as években épült, majd ’90 körül bővítették, végül 2007-ben ismét frissítették.
A környék csendes, nyugodt, átmenő forgalom nincs, csak az ott lakók járnak-kelnek az utcán.
A ház hatalmas teraszán csendes nyáresti borozás, baráti beszélgetés során értékeli csak igazán ezt a tényt a ház boldog tulajdonosa! A csendet csak a telken lévő fák, fenyők és diók halk susogása töri meg.
A közlekedés elsősorban autóval lehetséges. A ház alatt garázs van, de egy beállót is kialakítottak a kertben. Parkolni azonban az utcán is lehetséges, ha már nagyobbra emelkedett a vendégek száma. No persze a tömegközlekedés is elképzelhető, s egyáltalán nem bonyolult. A Hűvösvölgyből indul a 63-as busz, amiről a Sebestyéndomb megállónál kell leszállni, s onnan még 450 méter gyalog a házig. Közben a madarak víg füttyét hallgathatja a vándor.
Vásárlási lehetőség kissé beljebb van: immár Nagykovácsiban is számtalan üzlet, bolt adódik erre.
Végezetül essen szó magáról a házról is, hiszen mégis csak ez a lényeg.
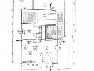
A ház szinteltolásos, négy hálószobája van, a hozzájuk tartozó két fürdőszobával. A földszinten nagy nappali van és a konyha is itt található.
A garázsban, illetve mellette mosókonyha van.
A ház azonnal költözhető, bár az megfontolást igényel, hogy esetleg némi felújítás elkelne a tökéletesebb komfort érdekében.
Nagykovácsi egyre divatosabb lesz, távol a nagyváros zajától, de mégis annak közelében.
Érdemes lehet tehát az Ön érdeklődésére is, aki ezt a hirdetést olvassa!
Még egyszer: kettőszáz tizenkilenc négyzetméter! Idilli környezet! Fák, virágok, fény!
S mindez mennyiért?
Meg fog lepődni! Írd és mondd:

170 (százhetven) millió forint!

Hát kell ennél jobb ajánlat?

Várjuk jelentkezését!


Elhelyezkedés: 2094, Nagykovácsi, Semmelweis utca

Környezet: Idilli környezet! Fák, virágok, fény! A környék csendes, nyugodt, átmenő forgalom nincs, csak az ott lakók járnak-kelnek az utcán.

Közlekedés: tömegközlekedés egyáltalán nem bonyolult. A Hűvösvölgyből indul a 63-as busz, amiről a Sebestyéndomb megállónál kell leszállni, s onnan még 450 méter gyalog a házig.


  • Alapterület 219 m²
  • Telekterület 730 m²
  • Szobák száma 5
  • Szerkezet Tégla
  • Állapot Átlagos
  • Belsőállapot Átlagos
  • Lakások / házrészek száma 1
  • Szintek száma 3
  • Generációk 2
  • Építés éve 1982
  • Felújítás éve 2007
  • Szobák típusa Külön nyíló
  • Belmagasság 300 cm
  • Konyhák száma 1
  • Konyha típusa Ablakos konyha
  • WC-k száma 3
  • Fürdőszoba szám 2
  • Födém típusa Vasbeton
  • Tető típusa Agyag cserép
  • Tetőtér Nem beépíthető
  • Fűtés típusa Radiátor fűtés
  • Nyílászárók típusa Műanyag
  • Nyílászárók állapota
  • Közművek víz, villany, gáz, csatorna

Eladná ingatlanát?

Teljesen megértjük, hiszen az ingatlaneladás egy komoly döntés. Kérjen visszahívást, és mi kötöttségektől mentesen tájékoztatjuk Önt a legkedvezőbb lehetőségekről. Hozzáértő ingatlan tanácsadó kollégáink készséggel állnak rendelkezésére bármilyen kérdés kapcsán.

Kérem az ingyenes tanácsadást!

Ingatlan hírek

A funkció használatához be kell lépnie.

A funkció használatához be kell lépnie.

A funkció használatához be kell lépnie.