Kápolnásnyék, Bem utca

Alapterület156 m²

Telekterület350 m²

Szobák száma 5

Irányár

119 175 000 FT


Egyéb tulajdonságok: geotermikus fűtés, külön wc, gardróbszoba, kamra, francia erkély, terasz, garázs


Extrák: Hőszivattyú.


Eladó Családi ház

Kápolnásnyék, Bem utca, 156 m²-es, 2 generációs, családi ház, 5 szobás

Eladó Kápolnásnyék Velencei-tóhoz közeli részén hőszivattyús, új építésű 166 nm-es, nappali+4 szobás ház két lakásos társasházban, saját telekrésszel, garázzsal.

Kifogástalan családi otthon fővároshoz és tóhoz közel.
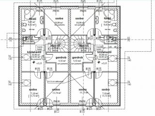
A 2 lakásos ház egy-egy lakása és kertje fizikailag és helyrajzi szám alapján is önálló, nincsenek közös használatú részek. Az 1. számú lakás földszintje 89,72 nm, tetőtere netto 52,94 nm területű. A földszinten nappali-étkező, amerikai konyha, 1 szoba, fürdőszoba+wc, kamra, háztartási helység, és gépkocsi tároló található. A tetőtérben 3 szoba, gardrób, fürdő+wc, wc található. A földszinti terasz a hátsó kertre néz.

A telek 700 nm-es, egy-egy ház számára középen elválasztva, a ház két egysége között a válaszfal hő- és hangszigetelt. A ház fűtéséről hőszivattyú gondoskodik, gáz is telken belül.

A hőszigetelésről, részletes műszaki tartalomról, kedvező fizetési ütemezésről, választható lehetőségekről kérjen részletes tájékoztatást e-mailben. Az 2. számú ház szintén megvásárolható.


Elhelyezkedés: 2475, Kápolnásnyék, Bem utca

Környezet: Kápolnásnyék Velencei-tóhoz közeli részén, csendes utcában.

Közlekedés: Velencei-tó, Velence Korzó 1 km, Kápolnásnyék Vasútállomás 2,5 km, Velence vasútállomás 1,1 km. M7-es autópálya felhajtó 2,5 km.


  • Alapterület 156 m²
  • Telekterület 350 m²
  • Szobák száma 5
  • Szerkezet Tégla
  • Állapot Új építésű
  • Belsőállapot Új építésű
  • Tájolás Ény-Dny
  • Szintek száma 2
  • Generációk 2
  • Készültség 70 %
  • Építés éve 2023
  • Szobák típusa Külön nyíló
  • Belmagasság 270 cm
  • Konyhák száma 1
  • Konyha típusa Amerikai
  • WC-k száma 3
  • Fürdőszoba szám 2
  • Födém típusa Vasbeton
  • Tető típusa Beton cserép
  • Tetőtér Beépített
  • Fűtés típusa Padlófűtés
  • Melegvíz típusa Egyéb
  • Nyílászárók típusa Műanyag
  • Közművek víz, villany, csatorna

Eladná ingatlanát?

Teljesen megértjük, hiszen az ingatlaneladás egy komoly döntés. Kérjen visszahívást, és mi kötöttségektől mentesen tájékoztatjuk Önt a legkedvezőbb lehetőségekről. Hozzáértő ingatlan tanácsadó kollégáink készséggel állnak rendelkezésére bármilyen kérdés kapcsán.

Kérem az ingyenes tanácsadást!

Ingatlan hírek

A funkció használatához be kell lépnie.

A funkció használatához be kell lépnie.

A funkció használatához be kell lépnie.