Gárdony, Partközeli Csendes utca

Alapterület83 m²

Telekterület500 m²

Szobák száma 4 + 2 fél

Irányár

59 900 000 FT


Egyéb tulajdonságok: tehermentes, azonnal költözhető, külön wc, kamra, francia erkély, terasz (19 m²)


Bővíthetőség: Az ingatlan övezeti besorolása: Üh2-4.2.2.2, azaz kertvárosi karakter, szabadonálló, 15% beépíthető, építménymagasság: 4 m (75 nm alapterületű ház építhető).


Eladó Üdülő

Gárdony, Partközeli Csendes utca, 83 m²-es, üdülő, 4+2 szobás

Eladó Gárdony-Agárdon 83 nm-es felújítandó, nappali+3 szoba+2 félszobás hétvégi ház 500 nm-es összközműves, gondozott telken 19,5 nm-es terasszal, kerti tárolóval, gázkonvektor fűtéssel.

Klasszikus tetőteres családi ház, 3 hálószobával, 2 félszobával, földszinti nappalival, konyhával, 2 fürdőszobával.
A ház 1985-ben épült B30-as téglából, vasbeton födémmel, zsindely (bitumenes lemez) fedéssel. Fűtés gázkonvektor, melegvíz: gázbojler és villanybojler. Szobák burkolata laminált parketta, a nappali és a vizes helységek járólaposak. Műanyag bejárati ajtó, a többi nyílászáró fa, mindenhol fa zsulugáterrel. Az épület masszív, jó állapotú, belül felújítandó. Belmagasság: 265 cm. A nagy terasz a kertre néz. Minden szoba külön bejáratú.

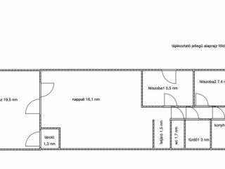
Helységlista:
Földszint:
nappali: 16,1 nm
félszoba1: 5,5 nm
félszoba2: 7,4 nm
konyha 3,8 nm
spájz: 1 nm
fürdőszoba: 3 nm (kádas)
wc: 1,7 nm
lépcsőfeljáró: 1,5 nm
tároló: 1,3 nm
összesen 41,3 nm

terasz: 19,5 nm

Tetőtér:
előtér: 1,8 nm
szoba1: 10,7 nm (franciaerkélyes)
szoba2: 10,3 nm (franciaerkélyes)
szoba3: 15,1 nm (franciaerkélyes)
fürdőszoba+wc: 4,9 nm (zuhanyzós)
összesen 42,8 nm

Az ingatlan övezeti besorolása: Üh2-4.2.2.2, azaz kertvárosi karakter, szabadonálló, 15% beépíthető, építménymagasság: 4 m (75 nm alapterületű ház építhető).


Elhelyezkedés: 2484, Gárdony (Agárd), Partközeli Csendes utca

Környezet: Hétvégi házak és családi házak Agárd csendes negyedében, a tóparttól 10 perc (800 m) sétára.

Közlekedés: Agárd vasútállomás 2,4 km.


  • Alapterület 83 m²
  • Telekterület 500 m²
  • Szobák száma 4
  • Félszobák száma 2
  • Szerkezet Tégla
  • Állapot Átlagos
  • Belsőállapot Felújítandó
  • Tájolás DNy-ÉK
  • Lakások / házrészek száma 1
  • Szintek száma 2
  • Építés éve 1985
  • Szobák típusa Külön nyíló
  • Belmagasság 265 cm
  • Konyhák száma 1
  • Konyha típusa Normál
  • WC-k száma 2
  • Fürdőszoba szám 2
  • Födém típusa Vasbeton
  • Tető típusa Zsindely
  • Tetőtér Beépített
  • Fűtés típusa Gázkonvektor fűtés
  • Melegvíz típusa Villanybojler
  • Nyílászárók típusa Fa
  • Nyílászárók állapota felújítandó
  • Közművek víz, villany, gáz, csatorna

Eladná ingatlanát?

Teljesen megértjük, hiszen az ingatlaneladás egy komoly döntés. Kérjen visszahívást, és mi kötöttségektől mentesen tájékoztatjuk Önt a legkedvezőbb lehetőségekről. Hozzáértő ingatlan tanácsadó kollégáink készséggel állnak rendelkezésére bármilyen kérdés kapcsán.

Kérem az ingyenes tanácsadást!

Ingatlan hírek

A funkció használatához be kell lépnie.

A funkció használatához be kell lépnie.

A funkció használatához be kell lépnie.