Dinnyés, Központi utca

Alapterület95 m²

Telekterület1243 m²

Szobák száma 3 + 2 fél

Irányár

93 000 000 FT


Egyéb tulajdonságok: gardróbszoba, kamra, garázs


Extrák: Fúrt kút.


Eladó Családi ház

Dinnyés, Központi utca, 95 m²-es, családi ház, 3+2 szobás, felújított / újszerű állapotú

Eladó Gárdony-Dinnyésen 95 nm-es 3+2 fél szobás, felújított családi ház 1243 nm-es összközműves telken 15 nm szerelőaknás garázzsal, 14 nm tárolóval.

Hitelképes ingatlan praktikus helységekkel, egy külön nyíló vendégszobával (szoba és fürdőszoba).
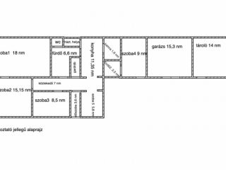
Helységlista:
előszoba 3,6 nm
közlekedő 7 nm
szoba1 15,5 nm
szoba2 18 nm
szoba3 8,5 nm
szoba5 5,8 nm
fürdő 6,6 nm (innen nyíló wc 1,5 nm)
gardrób 2,3 nm
konyha 11,35 nm
háztartási helység (konyhából nyíló) 1,6 nm
kamra (konyhából nyíló) 1,6 nm
vendégszoba:
szoba4 9 nm
fürdő 2,3 nm

garázs 15,3 nm
tároló 14 nm

Az eredeti, 70-es években épült házból 2 vert fal maradt, a többi tégla építésű. A legutóbbi felújítás 2021-ben történt (teljes tetőcsere szigeteléssel, nyílászárók, teljes elektromos vezeték csere, falak szigetelése 15 cm, szellőzőrendszer, kamerarendszer, okos világítás). A telken víz, csatorna, villany (3x25 A nappali, 3x25 A H-tarifa, elektromos autótöltő előkészítve), gázcsonk. Fűtés: 4 db hűtő-fűtő klíma, 4 db elektromos fűtőpanel, 10 kW-os napelem (szaldós még 8 évig). A kert rendezett, fúrt kúttal, filagóriával.
Dinnyés vasútállomás 1,2 km.
Hívjon információért, megtekintési időpontért!


Elhelyezkedés: 2485, Dinnyés, Központi utca

Környezet: Kertvárosias.

Közlekedés: Dinnyés vasútállomás 1,2 km.


  • Alapterület 95 m²
  • Telekterület 1243 m²
  • Szobák száma 3
  • Félszobák száma 2
  • Szerkezet Tégla
  • Állapot Felújított / Újszerű
  • Belsőállapot Átlagos
  • Tájolás D-Ny
  • Lakások / házrészek száma 2
  • Szintek száma 1
  • Építés éve 1970
  • Felújítás éve 2021
  • Szobák típusa Egybe- és különnyíló
  • Belmagasság 262 cm
  • Konyhák száma 1
  • Konyha típusa Normál
  • WC-k száma 2
  • Fürdőszoba szám 2
  • Födém típusa Fa
  • Tető típusa Agyag cserép
  • Tetőtér Nem beépíthető
  • Fűtés típusa Elektromos
  • Melegvíz típusa Villanybojler
  • Nyílászárók típusa Műanyag
  • Nyílászárók állapota új
  • Közművek víz, villany, gáz, csatorna
  • Energetikai besorolás B

Eladná ingatlanát?

Teljesen megértjük, hiszen az ingatlaneladás egy komoly döntés. Kérjen visszahívást, és mi kötöttségektől mentesen tájékoztatjuk Önt a legkedvezőbb lehetőségekről. Hozzáértő ingatlan tanácsadó kollégáink készséggel állnak rendelkezésére bármilyen kérdés kapcsán.

Kérem az ingyenes tanácsadást!

Ingatlan hírek

A funkció használatához be kell lépnie.

A funkció használatához be kell lépnie.

A funkció használatához be kell lépnie.