Budapest XXIII. Kerület, Szitás utca

Alapterület63 m²

Szobák száma 2

Irányár

57 900 000 FT


Egyéb tulajdonságok: tehermentes, azonnal költözhető, akadálymentes


Eladó Házrész

XXIII. Kerület, Szitás utca, 63 m²-es, házrész, 2 szobás, részben felújított állapotú

Dupla komfortos házrész saját kerttel a XXIII. kerület csendes mellékutcájában, hitelre is megvásárolható
Budapest XXIII. kerületének egyik legnyugodtabb részén, a Szitás utcában, egy csendes mellékutcában kínálunk megvételre egy háromlakásos udvarban található, önálló házrészt. Az ingatlanhoz ügyvéd által készített használati megosztási szerződés tartozik, így hitelkonstrukcióban is megvásárolható, jogilag rendezett formában.
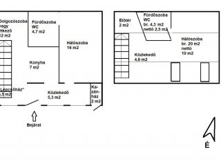
A lakás összesen 79,4 m²-es valós alapterülettel rendelkezik, amely nettó 53 m²-t jelent, de a terek kihasználtsága és a tetőtér beépítése miatt jóval tágasabbnak érződik. A földszint 48,5 m², a tetőtér bruttó 30,9 m², nettó 14,5 m², így a lakás ideális lehet pároknak, kis családoknak vagy akár két generáció számára is.
Felújított, kényelmes otthon
A ház 2008-ban teljes körű felújításon esett át: megújult az elektromos, víz- és csatornahálózat, ekkor történt a tetőtér beépítése is, betonfödémmel. A fűtést gázcirkó rendszer biztosítja, radiátorokon keresztül, a gázfelhasználás pedig bőven a kvóta alatt tartható. A földszinten 270 cm, a tetőtérben 250 cm a belmagasság a gerincnél, így a terek szellősek és világosak.
A ház dupla komfortos, azaz két külön fürdőszobával rendelkezik, ez ritka előny ebben a kategóriában.
A falazat vegyes: eredetileg vályog- és mészkőtéglából épült, a felújítás során Ytong téglákkal alakították ki a válaszfalakat és a közlekedőket, így a szerkezet stabil és jól szigetelt.

Saját kert és melléképületek
Az ingatlanhoz 70 m²-es saját kertrész tartozik, amely ideális pihenésre, kerti munkára vagy akár kisállattartásra. A kertben három különálló melléképület található: 4 m², 7 m² és 12 m² alapterülettel. A legnagyobb épületben elektromos áram és gázfűtés is rendelkezésre áll, így akár műhelynek, tárolónak vagy hobbihelyiségnek is kiválóan alkalmas.

Környezet és közlekedés
A Szitás utca nyugodt, családi házas övezet, ahol a természet közelsége és a városi infrastruktúra ideális egyensúlyban van. A környék rendezett, barátságos lakóközösséggel, kevés átmenő forgalommal, tökéletes választás azoknak, akik nyugalmat keresnek, de nem szeretnének elszakadni Budapesttől.
Közlekedés:
• Autóval gyorsan elérhető az M0-s, az M5-ös és a régi 51-es út
• Tömegközlekedéssel a belváros 30–40 perc alatt elérhető
• A közelben több buszjárat is közlekedik, amelyek Soroksár, Pesterzsébet és Kispest felé biztosítanak kapcsolatot

Ez az ingatlan azoknak szól, akik nem csupán négy falat keresnek, hanem egy valódi otthont, saját kerttel, nyugalommal, és minden olyan műszaki háttérrel, amely hosszú távon is kényelmes és fenntartható életet biztosít. Ha szeretné megtapasztalni, milyen érzés lehet itt élni, szívesen megmutatjuk!


Elhelyezkedés: 1238, Budapest, XXIII. Kerület (Soroksár), Szitás utca

Környezet: családi házas, mellék utca

Közlekedés: .


  • Alapterület 63 m²
  • Telekterület 145 m²
  • Szobák száma 2
  • Hátsókert 70 m²
  • Szerkezet Egyéb, vegyes szerkezet
  • Állapot Részben felújított
  • Belsőállapot Részben felújított
  • Tájolás DK-i
  • Lakások / házrészek száma 3
  • Szintek száma 1
  • Fűtés költség (Télen) 15 000 Ft / hónap
  • Építés éve 1950
  • Felújítás éve 2008
  • Szobák típusa Külön nyíló
  • Belmagasság 270 cm
  • Konyhák száma 1
  • Konyha típusa Normál
  • WC-k száma 2
  • Fürdőszoba szám 2
  • Födém típusa Vasbeton
  • Tető típusa Agyag cserép
  • Tetőtér Beépített
  • Fűtés típusa Gázcirkó fűtés
  • Melegvíz típusa Cirkó
  • Nyílászárók típusa Műanyag
  • Nyílászárók állapota
  • Közművek víz, villany, gáz, csatorna

Eladná ingatlanát?

Teljesen megértjük, hiszen az ingatlaneladás egy komoly döntés. Kérjen visszahívást, és mi kötöttségektől mentesen tájékoztatjuk Önt a legkedvezőbb lehetőségekről. Hozzáértő ingatlan tanácsadó kollégáink készséggel állnak rendelkezésére bármilyen kérdés kapcsán.

Kérem az ingyenes tanácsadást!

Ingatlan hírek

A funkció használatához be kell lépnie.

A funkció használatához be kell lépnie.

A funkció használatához be kell lépnie.