Budapest XXIII. Kerület, Karmazsin utca

Alapterület160 m²

Telekterület521 m²

Szobák száma 5

Irányár

234 990 000 FT


Egyéb tulajdonságok: tehermentes, azonnal költözhető, külön wc, gardróbszoba, kamra, terasz (80 m²), garázs


Extrák: 8,5 kW-os napelemes rendszer


Eladó Családi ház

XXIII. Kerület, Karmazsin utca, 160 m²-es, családi ház, 5 szobás

Új, széndioxid kibocsátás nélküli családi ház eladó Orbánhegyen.
Ha szeretne fenntarthatóbbá tenni életét, akkor a házzal nagy lépést tehet előre!
Soroksáron, Orbánhegy városrészben, ahol szinte csak olyan házak állnak, amelyek az utóbbi 10-15 évben épültek, 521 m2-es telken épül ez a bruttó 200 m2-es családi ház.
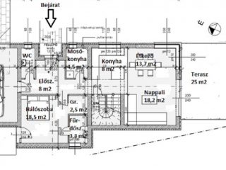
Az összesen 152 m2 hasznos lakóterületű házhoz három, összesen 80 m2-nyi terasz tartozik. A ház két szintes, a 34 m2-es amerikai-konyhás nappali mellett 4 hálószobával rendelkezik. A garázs közvetlen kapcsolatban van a házzal, azaz a kocsiból kiszállva a garázsból közvetlenül beléphetünk az előszobába.
A nappali úgy lett tájolva, hogy a Nap minden irányból bevilágíthassa, ezáltal egész nap átjárja a házat a természetes fény, Keletről, Délről és Nyugatról egyaránt. A nappali különösen nagy méretű ablakai, teraszajtói annyi fényt engednek be a házba, hogy keresztül-kasul átvilágítja a helyiséget, ezért indokolt a légkondicionáló berendezés, ami a vételár részét képezi. Ebben a helyiségben a nappali, a konyha és az étkező funkcióit egyesítették. Innen nyílik a ház legnagyobb terasza is, amely 30 m2-es. A konyhában egy teljesen gépesített konyhabútort építenek, amely a vételár részét képezi.
Ezen a szinten találunk egy vendég WC-t és egy mosókonyhát, és természetesen a garázst is.
A gondos tervezéskor figyelembe vették, hogy nem mindenki szeretne lépcsőzni a családban, aki a hálószobájába akar menni, ezért a földszinten is kialakítottak egy hálószobát. Ebben a hálóban közvetlen kapcsolattal egy fürdőszobát és egy gardróbot érhetünk el.
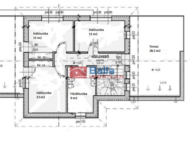
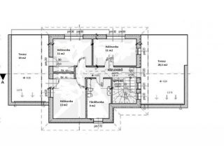
A másik három hálószoba mindegyike már az emeleten található. Ezen a szinten is van egy fürdőszoba, amelyben a WC is ki lett alakítva. Az emelet két oldalán egy-egy hatalmas, 19 és 25 m2-es teraszt, amely akár közösségi események lebonyolítására is elegendő helyet kínál, akár külön-külön is.
A ház fűtését megújuló energiát is felhasználni képes elektromos rendszer biztosítja majd. A meleget padlófűtésen és radiátorokon keresztül adja át a háznak. A falak 30 cm-es téglákból épültek, amelyek szigetelőképességét 10 cm szigeteléssel javították. A ház tetejére 8,5 KW-os, fotovoltaikus napelem rendszer kerül kiépítésre, amellyel nem csak rásegíthetünk az elektromos ellátásra, de a teljes fűtéséről is képes gondoskodni egész éveben. A ház egyébként 3x25 A-es elektromos betáplálást kap, amelyet nem légkábelen, hanem földkábellel vezetik el a házig. A meleg víz szintén elektromosan van előállítva.
A tető megfelelő teherbírású konstrukció, hogy betoncseréppel legyen fedve és a napelemeket is bőven elbírja.
A belső burkolatokat és a szanitereket a kivitelezés fázisának függvényében a vevő választásának megfelelően építik be. A hidegburkolatok 5.000 Ft/ m2-is, a meleg burkolatok 3.000 Ft/m2-ig, míg a szanitereket 500.000 Ft-ig a vételár részét képezik.
A garázs elektromos vezérlésű kapuja a vételár része, ahogy az elektromosan vezérelhető kertkapu is. A garázs előtti útszakasz tárkővel lesz burkolva.
A gyepesített kert és az öntözőrendszer szintén a vételár részét képezi.
A ház körül térkövezett macskajárda húzódik majd, hogy kulturáltan, tiszta lábbal lehessen körbejárni a házat.
Az ingatlan tervezett átadása 2022 első felében várható. CSOK és Zöld hitel is igénybe vehető.


Elhelyezkedés: 1239, Budapest, XXIII. Kerület (Apostolhegy), Karmazsin utca

Környezet: családi házas

Közlekedés: M0


  • Alapterület 160 m²
  • Telekterület 521 m²
  • Utcafronti szélesség 22 m
  • Szobák száma 5
  • Szerkezet Tégla
  • Állapot Extrán felszerelt
  • Belsőállapot Extrán felszerelt
  • Tájolás DK-i
  • Szintek száma 2
  • Fűtés költség (Átlag) 15 000 Ft / hónap
  • Építés éve 2022
  • Szobák típusa Külön nyíló
  • Belmagasság 260 cm
  • Konyhák száma 1
  • Konyha típusa Amerikai
  • WC-k száma 3
  • Fürdőszoba szám 2
  • Födém típusa Vasbeton
  • Tető típusa Beton cserép
  • Tetőtér Nem beépíthető
  • Fűtés típusa Elektromos
  • Melegvíz típusa Villanybojler
  • Nyílászárók típusa Műanyag
  • Nyílászárók állapota új
  • Közművek víz, villany, csatorna

Eladná ingatlanát?

Teljesen megértjük, hiszen az ingatlaneladás egy komoly döntés. Kérjen visszahívást, és mi kötöttségektől mentesen tájékoztatjuk Önt a legkedvezőbb lehetőségekről. Hozzáértő ingatlan tanácsadó kollégáink készséggel állnak rendelkezésére bármilyen kérdés kapcsán.

Kérem az ingyenes tanácsadást!

Ingatlan hírek

A funkció használatához be kell lépnie.

A funkció használatához be kell lépnie.

A funkció használatához be kell lépnie.