Budapest XXII. Kerület, Nagytétényi úti ALDI utca

Alapterület110 m²

Telekterület350 m²

Szobák száma 4

Irányár

138 000 000 FT


Egyéb tulajdonságok: kamra, terasz, zárt autóbeálló


Extrák: hőszivattyú, elektromos redőny, hűtő-fűtő klíma, padlófűtés, 10 cm külső hőszigetelés


Eladó Ikerház

XXII. Kerület, Nagytétényi úti ALDI utca, 110 m²-es, ikerház

**Stílusos otthon saját kerttel – költözz be egy új szintre!**

Képzeld el, hogy egy csendes, barátságos környezetben élsz, ahol minden vadonatúj, energiatakarékos és a mai igényekhez igazodik. Budapest XXII. kerületének egyik kedvelt részén most olyan lehetőség vár, amit érdemes komolyan venni.
Egy frissen elkészült, kétlakásos épületben kínálunk külön-külön megvásárolható, teljes értékű otthonokat. Mindkét lakás önálló bejárattal rendelkezik, és saját, tágas kert tartozik hozzájuk, így a nyugalom és a privát szféra garantált.

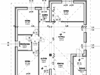
**Lakások kialakítása:**
A körülbelül 110 négyzetméteres élettér ideális elrendezésű: központi szerepet kap a világos nappali és a konyha egysége, amelyhez három külön nyíló szoba kapcsolódik. Emellett egy praktikus háztartási helyiség és egy kényelmes fürdőszoba is helyet kapott. A mindennapi komfortot saját autóbeálló teszi teljessé.

**Ami miatt igazán jó választás:**
A modern gépészetnek köszönhetően a fenntartási költségek alacsonyan tarthatók. A hőszivattyús rendszer és a teljes felületen kialakított padlófűtés kellemes hőérzetet biztosít, míg a klímaberendezések egész évben gondoskodnak a megfelelő hőmérsékletről. A korszerű nyílászárók, árnyékolástechnika és a szigetelés mind hozzájárulnak az energiahatékony működéshez.

**Biztonság és funkcionalitás:**
Az ingatlan elő van készítve biztonsági rendszer kiépítésére, a telek körbekerített, a bejutást elektromos kapu segíti. A kétlakásos kialakítás ellenére a lakók teljesen elkülönítve élhetnek, ráadásul a telek adottságainak köszönhetően külön utcáról is megközelíthetők.

Az emeleti lakás saját lépcsőházon keresztül érhető el, így még inkább biztosított a zavartalan használat.

A bemutatott képek illusztrációk, amelyek segítenek elképzelni, hogyan válhat ez az ingatlan valódi otthonná.

Ha egy új építésű, jól átgondolt otthont keresel nyugodt környezetben, de fontos számodra a város közelsége is, ezt mindenképp nézd meg!

Igény esetén a finanszírozásban is támogatást nyújtunk, hogy a vásárlás minél egyszerűbb legyen.


Elhelyezkedés: 1225, Budapest, XXII. Kerület (Nagytétény), Nagytétényi úti ALDI utca

Környezet: A környék csendes, kertvárosias hangulatú, sok zöldfelülettel és nyugodt utcákkal, ami ideális a mindennapi pihenéshez. A közelben megtalálhatók a szükséges infrastruktúrák, mint boltok, iskolák és óvodák, így a mindennapi ügyintézés kényelmesen megoldható. A természet közelsége kellemes életteret biztosít mindazok számára, akik szeretnének elszakadni a belváros zajától.

Közlekedés: A környékről könnyen elérhetők a főbb közlekedési útvonalak, így autóval gyorsan megközelíthető a belváros és az M0-s körgyűrű is. Tömegközlekedéssel is jól ellátott a terület, több buszjárat biztosít kapcsolatot a város többi részével. A közlekedés kiegyensúlyozott, így a nyugodt lakókörnyezet mellett a mobilitás is adott.


  • Alapterület 110 m²
  • Telekterület 350 m²
  • Utcafronti szélesség 10 m
  • Szobák száma 4
  • Szerkezet Tégla
  • Állapot Új építésű
  • Belsőállapot Új építésű
  • Lakások / házrészek száma 2
  • Szintek száma 2
  • Készültség 70 %
  • Építés éve 2026
  • Szobák típusa Külön nyíló
  • Belmagasság 270 cm
  • Konyhák száma 1
  • Konyha típusa Amerikai
  • WC-k száma 1
  • Fürdőszoba szám 1
  • Födém típusa Vasbeton
  • Tető típusa Beton cserép
  • Tetőtér Nem beépíthető
  • Fűtés típusa Hőszivattyú
  • Melegvíz típusa Egyéb
  • Nyílászárók típusa Műanyag
  • Nyílászárók állapota új
  • Közművek víz, villany, csatorna

Eladná ingatlanát?

Teljesen megértjük, hiszen az ingatlaneladás egy komoly döntés. Kérjen visszahívást, és mi kötöttségektől mentesen tájékoztatjuk Önt a legkedvezőbb lehetőségekről. Hozzáértő ingatlan tanácsadó kollégáink készséggel állnak rendelkezésére bármilyen kérdés kapcsán.

Kérem az ingyenes tanácsadást!

Ingatlan hírek

A funkció használatához be kell lépnie.

A funkció használatához be kell lépnie.

A funkció használatához be kell lépnie.