Budapest XX. Kerület, Hunyor utca

Eladó Társasházi lakás

XX. Kerület, Hunyor utca, 84 m²-es, társasházi lakás, 3+1 szobás

KÖSSE MEG ADÁSVÉTELI SZERZŐDÉSÉT BEVEZETŐ ÁRON! IGÉNYES KIVÉTELEZÉS! JÓ ELRENDEZÉSŰ LAKÁSOK! KIVÁLÓ ÁR-ÉRTÉK ARÁNY!

Eladó Budapest, XX. kerületben, Erzsébetfalván, a Hunyor utcában, családi házas övezetben, jó közlekedés mellett, új építési társasház I. emeletén, 84 nm alapterületű, 3 szobás, erkélyes, amerikai konyhás társasházi lakás.
A társasházban további lakások eladók 46 nm és 102 nm között.

Várható birtokba adás: 2026. I. név.

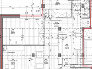
HELYISÉGLISTA:
- amerikai konyhás nappali, étkező (28 nm)
- szoba (13 nm)
- szoba (16 nm)
- szoba (11 nm)
- fürdőszoba (5 nm)
- WC (1 nm)
- közlekedő (6 nm)
- erkély (5 nm)
- közös területek
- lift, kukatároló, opcionális parkolási lehetőség

MŰSZAKI LEÍRÁS
- 30 cm Ytong tégla falazat
- SILKA hanggátló falazat a lakások közt
- 20 cm betonfödém
- 15 cm dryvit szigetelés
- 3 rétegű üvegezéssel ellátott 6 kamrás műanyag ablakok
- biztonsági bejárati ajtó
- üveg erkély korlátok
- házközponti fűtés és meleg víz ellátás (Viessmann rendszer)
- radiátoros hőleadás, hőmennyiség méréssel
- MIDEA 3,6 kW-os hűtő-fűtő klíma
- konyha előkészítés, elektromos tűzhely bekötési lehetőség
- kádas vagy zuhanyzós fürdőszoba, törölköző szárítós radiátor
- kerámia burkolatok, laminált padló

A környezet nagyon jó infrastruktúrával és közlekedéssel rendelkezik. Villamos, buszmegállók pár lépésre megtalálhatóak. M3 metró Határ úti megállója szintén könnyen elérhető. A közelben bölcsőde, óvoda, iskola megtalálható.

A lakás közös költsége várhatóan 10-20 000 Ft/hó körül alakul majd lakás méretétől függőn, fűtés, meleg víz átlagban 15-25 000 Ft/hó szintén a lakás méretétől függően. Víz és elektromos áram fogyasztás szerint fizetendő.

Udvari, zárt parkolóhely későbbikben megvásárolható.

Adásvételi szerződéshez az ügyvédet az Eladó biztosítja, melynek költsége a Vevőt terheli.
Kollégáink amennyiben a lakás vásárláshoz hitel szükséges, több bank ajánlatával ingyenes hitel tanácsadással állnak rendelkezésre.

Ne maradjon le az ajánlatról! Keressen bizalommal, akár hétvégén is.


Elhelyezkedés: 1205, Budapest, XX. Kerület (Erzsébetfalva), Hunyor utca

Környezet: Családi házas övezet

Közlekedés: Villamos 2B, 3, 51, 52, busz 2b, 52, M3 metró


  • Alapterület 84 m²
  • Szobák száma 3
  • Félszobák száma 1
  • Szerkezet Tégla új építésű
  • Állapot Kiváló
  • Társasház állapota Kiváló
  • Lakások / házrészek száma 22
  • Társasház szintjei 4 emeletes
  • Közös költség (Vízdíj nélkül) 15 000 Ft / hónap
  • Fűtés költség (Átlag) 20 000 Ft / hónap
  • Építés éve 2024
  • Szobák típusa Külön nyíló
  • Belmagasság 270 cm
  • Konyhák száma 1
  • Konyha típusa Amerikai
  • WC-k száma 1
  • Fürdőszoba szám 1
  • Fűtés típusa Házközponti fűtés egyedi mérőórákkal
  • Melegvíz típusa Központi
  • Nyílászárók típusa Műanyag
  • Nyílászárók állapota új

Eladná ingatlanát?

Teljesen megértjük, hiszen az ingatlaneladás egy komoly döntés. Kérjen visszahívást, és mi kötöttségektől mentesen tájékoztatjuk Önt a legkedvezőbb lehetőségekről. Hozzáértő ingatlan tanácsadó kollégáink készséggel állnak rendelkezésére bármilyen kérdés kapcsán.

Kérem az ingyenes tanácsadást!

Ingatlan hírek

A funkció használatához be kell lépnie.

A funkció használatához be kell lépnie.

A funkció használatához be kell lépnie.