Budapest XIX. Kerület, Óváros

Terület188 m²

Szobák száma 5

Irányár

109 000 000 FT

Eladó Családi ház

XIX. Kerület, Óváros, 188 m²-es, 2 generációs, családi ház, 5 szobás

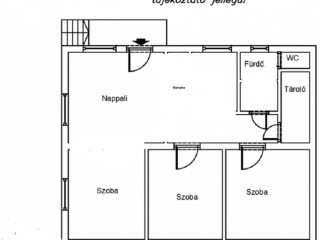
Nagy családnak, összeköltözőknek vagy vállalkozóknak kínálom ezt a kétszintes kertes, jó állapotú házat Kispest központi részén, családi házas környezetben. A 300 nm-es telken a lakóépületen kívül egy kétállásos garázs is található.

A FÖLDSZINT az udvar szintjén található, ugyanakkor az utca felé csak kis ablakai vannak, teljesen felújítandó, jelenleg raktárnak használt nagy épületrész, ami vállalkozás kialakításra is alkalmas.
AZ EMELET-et a tulajdonos felújította: A 3 szobás, külön bejáratú lakórészben a villanyvezetékeketkicserélték, új fürdőszobát alakítottak ki. A belső falak lebontásával egy tágas amerikai konyhás nappalit valósítottak meg, szép új burkolattal. Emellett két külön bejáratú tágas, világos szoba kényelmes életteret biztosít a családnak. Az otthon melegét klímák a meleg vizet villanybojler biztosítja.

A közlekedés remek: 42-es villamos, 268-as busz, S1 vonat megállói a közelben. A Köki vagy a Határ úti metrómegálló ( M3) 15 perc alatt elérhető.

A környéken a parkolás ingyenes.

Várom megtisztelő hívását, akár hétvégén is.


Elhelyezkedés: 1195, Budapest, XIX. Kerület (Óváros), Óváros

Környezet: Városias családi házas környezet

Közlekedés: 42-es villamos, 268-as busz, S1 vonat A Köki vagy a Határ úti metrómegálló ( M3) 15 perc alatt elérhető.


  • Alapterület 188 m²
  • Telekterület 349 m²
  • Utcafronti szélesség 15 m
  • Szobák száma 5
  • Szerkezet Tégla
  • Állapot Átlagos
  • Belsőállapot Felújított / Újszerű
  • Tájolás DNY
  • Lakások / házrészek száma 2
  • Szintek száma 2
  • Generációk 2
  • Építés éve 1970
  • Felújítás éve 2024
  • Szobák típusa Külön nyíló
  • Belmagasság 305 cm
  • Konyhák száma 1
  • Konyha típusa Amerikai
  • WC-k száma 2
  • Födém típusa Vasbeton
  • Tető típusa Agyag cserép
  • Tetőtér Beépíthető
  • Fűtés típusa Elektromos
  • Melegvíz típusa Villanybojler
  • Nyílászárók típusa Fa
  • Nyílászárók állapota
  • Közművek víz, villany, gáz, csatorna

Eladná ingatlanát?

Teljesen megértjük, hiszen az ingatlaneladás egy komoly döntés. Kérjen visszahívást, és mi kötöttségektől mentesen tájékoztatjuk Önt a legkedvezőbb lehetőségekről. Hozzáértő ingatlan tanácsadó kollégáink készséggel állnak rendelkezésére bármilyen kérdés kapcsán.

Kérem az ingyenes tanácsadást!

Ingatlan hírek

A funkció használatához be kell lépnie.

A funkció használatához be kell lépnie.

A funkció használatához be kell lépnie.