Budapest XIX. Kerület, Shopmark közeli út

Alapterület110 m²

Szobák száma 4

Irányár

101 000 000 FT


Egyéb tulajdonságok: tehermentes, terasz (19 m²)


Extrák: A tulajdonhoz tartozik egy trafóház amiért az elektromos művek évi 500.000FT bérleti díjat fizet.


Eladó Házrész

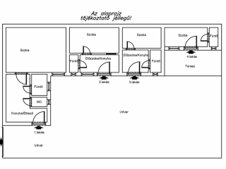
XIX. Kerület, Shopmark közeli út, 110 m²-es, 4 generációs, házrész

Csak a Balla ingatlan iroda kínálatában. Kispest kedvelt észén a Határ úti 3-as metró közelében eladásra kínálok egy 304 nm-es telken lévő 110nm-es házat, amiben jelenleg 4 lakás van kialakítva.Fizikailag is és jogilag is teljesen elszeparálva.
A 4 lakásból 3 felújítandó állapotú.
Az ingatlan fűtését gázkonvektorok biztosítják.
Az ablakok nagy részét műanyag szerkezetűre cserélték és új bejárati ajtók kerültek beépítésre.
Közelben Óvoda, iskola, bevásárlási lehetőség.
Közlekedés: 3-as metró, 50-es villamos és számos busz.
befektetésre vállalkozásra alkalmas.
2-1+2félszobás panellakást értékegyeztetéssel beszámítanak a Tulajdonosok.CSERE LEHETSÉGES.
Várom megtisztelő hívását, akár hétvégén is.


Elhelyezkedés: 1191, Budapest, XIX. Kerület (Kispest), Shopmark közeli út

Környezet: Pár perc sétával elérhető a Shopmark a Határúton.közelben bevásárlási lehetőségek.

Közlekedés: 50-es villamos, 3-as metró, számos busz és éjszakai járatok.


  • Alapterület 110 m²
  • Telekterület 304 m²
  • Utcafronti szélesség 16 m
  • Szobák száma 4
  • Szerkezet Tégla
  • Állapot Felújítandó
  • Belsőállapot Felújítandó
  • Szintek száma 1
  • Generációk 4
  • Építés éve 1930
  • Szobák típusa Külön nyíló
  • Belmagasság 305 cm
  • Konyhák száma 4
  • Konyha típusa Ablakos konyha
  • WC-k száma 4
  • Fürdőszoba szám 4
  • Födém típusa Fa
  • Tető típusa Agyag cserép
  • Tetőtér Beépíthető
  • Fűtés típusa Gázkonvektor fűtés
  • Melegvíz típusa Villanybojler
  • Nyílászárók típusa Műanyag
  • Közművek víz, villany, gáz, csatorna

Eladná ingatlanát?

Teljesen megértjük, hiszen az ingatlaneladás egy komoly döntés. Kérjen visszahívást, és mi kötöttségektől mentesen tájékoztatjuk Önt a legkedvezőbb lehetőségekről. Hozzáértő ingatlan tanácsadó kollégáink készséggel állnak rendelkezésére bármilyen kérdés kapcsán.

Kérem az ingyenes tanácsadást!

Ingatlan hírek

A funkció használatához be kell lépnie.

A funkció használatához be kell lépnie.

A funkció használatához be kell lépnie.