Budapest XIII. Kerület, Szent István Park közelében luxusingatlan eladó!

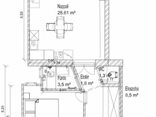
Terület56 m²

Szobák száma 2

Irányár

139 000 000 FT


Egyéb tulajdonságok: tehermentes, azonnal költözhető, külön wc, gardróbszoba


Extrák: Lakberendező által berendezett,teljesen felszerelt ingatlant.<br /> IGÉNY és ALKU szerint, az EXTRAFELSZERELTSÉG az árban!


Eladó Társasházi lakás

XIII. Kerület, Szent István Park közelében luxusingatlan eladó!, 56 m²-es, társasházi lakás

XIII. kerület presztízs részén kitűnő lehetőség!

Ez az otthon nem csupán lakás,
hanem életstílus és időtálló befektetés! Erre vágysz?
Jó helyen jársz,az alábbi hirdetés neked szól!:)

Budapest egyik legkeresettebb városrészében,a Pozsonyi úton kínálunk megvételre EXTRAFELSZERELTSÉGŰ 56 m²-es, 4. emeleti luxuslakást.

Az ingatlan teljes körű, magas műszaki és esztétikai színvonalú felújításon esett át, ahol minden részlet a minőség, a kifinomult elegancia és a maximális komfort jegyében valósult meg.

A tágas nappali, az intim hangulatú hálószoba, a külön walk-in gardróbszoba, valamint a prémium anyagokkal kialakított modern konyha és fürdőszoba harmonikus, letisztult luxusérzetet teremtenek.

Teljesen megújult víz-, csatorna- és elektromos hálózat
Új, korszerű nyílászárók
Egyedileg gyártott, masszív fa bejárati ajtó
Külön gardróbszoba
Légkondicionált helyiségek
Hangszigetelt falak a zavartalan komfort érdekében
Egyedi tervezésű, design konyhabútor prémium gépekkel
Lakberendezés 5* elegáns térkialakítás
Dokumentált felújítás, kizárólag minőségi, prémium anyagokkal
Igény esetén a bútorzat a vételár részét képezheti
Rendezett, liftes társasház két külön felvonóval

Közösköltség: 11E./hó
Fűtés: Hűtő-Fűtő klíma,korszerű elektromos fűtőpanel

A nagyvonalú, 3,6 méteres belmagasság, a bőséges természetes fény és a stílusos lakberendezési megoldások valódi nagypolgári hangulatot idéznek, modern luxussal ötvözve.

Mindössze néhány perc sétára található a Szent István Park, a Duna-part, valamint a környék ikonikus sétányai — ideális választás azok számára, akik értékelik a városi élet elegáns, mégis élhető formáját.


Elhelyezkedés: 1134, Budapest, XIII. Kerület (Újlipótváros), Szent István Park közelében luxusingatlan eladó!


  • Alapterület 56 m²
  • Szobák száma 2
  • Szerkezet Tégla régi építésű
  • Állapot Felújított / Újszerű
  • Társasház állapota
  • Tájolás DK
  • Társasház szintjei 6 emeletes
  • Közös költség (Vízdíj nélkül) 11 000 Ft / hónap
  • Építés éve 1945
  • Felújítás éve 2025
  • Szobák típusa Külön nyíló
  • Belmagasság 340 cm
  • Konyhák száma 1
  • Konyha típusa Amerikai
  • WC-k száma 1
  • Fürdőszoba szám 1
  • Fűtés típusa Elektromos
  • Melegvíz típusa Villanybojler
  • Nyílászárók típusa Műanyag
  • Nyílászárók állapota KIVÁLÓ

Eladná ingatlanát?

Teljesen megértjük, hiszen az ingatlaneladás egy komoly döntés. Kérjen visszahívást, és mi kötöttségektől mentesen tájékoztatjuk Önt a legkedvezőbb lehetőségekről. Hozzáértő ingatlan tanácsadó kollégáink készséggel állnak rendelkezésére bármilyen kérdés kapcsán.

Kérem az ingyenes tanácsadást!

Ingatlan hírek

A funkció használatához be kell lépnie.

A funkció használatához be kell lépnie.

A funkció használatához be kell lépnie.