Budapest XI. Kerület, Etele út

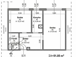
Terület51 m²

Szobák száma 2

Bérleti díj

240 000 FT
+2 hónap kaució


Egyéb tulajdonságok: tehermentes, azonnal költözhető, külön étkező, külön wc, erkély (4 m²), utcai parkolás


Kiadó Társasházi lakás

XI. Kerület, Etele út, 51 m²-es, társasházi lakás, 2 szobás, átlagos állapotú

Erkélyes, világos lakás a Bikás park közelében – azonnal költözhető!

Budapest XI. kerületében, az Etele úton, a Bikás park szomszédságában kiadó egy 51 nm-es,VII.emeleti, 2 külön nyíló szobás, világos és csendes panellakás. Az ingatlan erkélyes, panelprogramos, rendezett házban található. Megközelítése kiváló.
A környék minden szempontból ideális: Bikás park, Kelenföldi pályaudvar, Allee Bevásárlóközpont és a M4 metró könnyedén elérhető.

A lakás berendezve, a képeken látható bútorokkal, valamint teljesen gépesítve kiadó. Kisállat megbeszélés szerint hozható. Parkolás az utcán fizetős övezetben, bejelentkezési lehetőséggel.
Havi bérleti díj: 240 000Ft + rezsi
A közös költség 22 000 Ft.
A beköltözéshez 2 havi kaució + közjegyzői nyilatkozat szükséges.

Ha egy jól elhelyezkedő, azonnal költözhető, élhető lakást keres a XI. kerületben, ezt érdemes megnézni!


Elhelyezkedés: 1119, Budapest, XI. Kerület (Kelenföld), Etele út

Környezet: lakótelepi környezet, központi elhelyezkedés

Közlekedés: kitűnő közlekedés, könnyen elérhető a vasútállomás vagy akár az M4 metró. Parkolás közterületen fizetős övezetben.


  • Alapterület 51 m²
  • Szobák száma 2
  • Lakcím bejelentés Megoldható
  • Bútorozott Teljesen
  • Gépesített Igen
  • Állat tartása Engedélyezett
  • Szerkezet Panel (panelprogramos)
  • Állapot Átlagos
  • Társasház állapota
  • Tájolás nyugat
  • Társasház szintjei 10 emeletes
  • Közös költség (Vízdíj nélkül) 22 000 Ft / hónap
  • Fűtés költség (Átlag) 7 000 Ft / hónap
  • Szobák típusa Külön nyíló
  • Belmagasság 265 cm
  • Konyhák száma 1
  • Konyha típusa Ablakos konyha
  • WC-k száma 1
  • Fürdőszoba szám 1
  • Födém típusa Vasbeton
  • Fűtés típusa Távfűtés egyedi mérőórával
  • Melegvíz típusa Távhő

Eladná ingatlanát?

Teljesen megértjük, hiszen az ingatlaneladás egy komoly döntés. Kérjen visszahívást, és mi kötöttségektől mentesen tájékoztatjuk Önt a legkedvezőbb lehetőségekről. Hozzáértő ingatlan tanácsadó kollégáink készséggel állnak rendelkezésére bármilyen kérdés kapcsán.

Kérem az ingyenes tanácsadást!

Ingatlan hírek

A funkció használatához be kell lépnie.

A funkció használatához be kell lépnie.

A funkció használatához be kell lépnie.