Budapest X. Kerület, Kőrösi Csoma Sándor sétány

Terület105 m²

Szobák száma 3 + 2 fél

Irányár

95 000 000 FT


Egyéb tulajdonságok: tehermentes, lift, külön wc, gardróbszoba, erkély (6 m²)


Eladó Társasházi lakás

X. Kerület, Kőrösi Csoma Sándor sétány, 105 m²-es, társasházi lakás

Két szintnyi otthonosság a Kőrösi Csoma Sétány szívében, ahol a tér és fény találkozik
Ha egy igazán különleges otthonra vágysz, amely nemcsak négy fal, hanem stílus is, akkor ez a 105 m²-es, belső kétszintes lakás a Kőrösi Csoma Sándor sétányon neked szól. A 4. emeleten elhelyezkedő lakás minden négyzetmétere a tágasságot és a világosságot ünnepli, a napfény reggeltől estig körbetáncolja a tereket, miközben a sétány zöldje nyugalmat lehel az erkélyre.
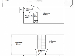
Az alsó szinten egy amerikai konyhás nappali fogad, ahol a családi reggelik és baráti beszélgetések otthonra találnak. Egy külön bejáratú hálószoba, egy zuhanyzós fürdő, valamint egy külön WC gondoskodik a praktikumról. A nappaliból kilépve egy 5,8 m²-es, Dél-Keletre néző erkélyre jutsz, ahonnan a sétány fái és a város halk moraja köszönt minden reggel.
A nappaliból induló kényelmes lépcső egy új dimenzióba visz: a felső szinten két külön nyíló hálószoba, egy fürdőszoba káddal, zuhanyzóval, dupla mosdóval és WC-vel, valamint egy gardróbszoba vár. Itt mindenki megtalálja a saját kis zugát, legyen szó pihenésről, munkáról vagy elvonulásról.
A lakás duplakomfortos, klímával felszerelt nappalival és hálószobákkal, hőszigetelt műanyag nyílászárókkal, és egy közös tárolóval a pincében. Bár lift nincs, a lakás minden lépcsőfoka megéri a felfelé vezető utat.
Költségek
A rezsi kedvező: távfűtés egyedi méréssel (kb. 23.000 Ft/hó, beleértve a meleg vizet), víz és áram fogyasztás szerint, gáz csak a tűzhelyhez. A közös költség 29.000 Ft/hó, amely tartalmazza a felújítási alapot, biztosítást, takarítást és minden szokásos kiadást.
A lakás 11 éve teljes körű felújításon esett át, azóta is jó állapotban van, készen arra, hogy új történeteket írjon veled.
Ez nem csupán egy lakás. Ez egy otthon, ahol a fény, a tér és a nyugalom kézen fogva járnak. Ha szeretnéd, segítek megfogalmazni hozzá a hirdetés címét is
Kőrösi Csoma Sándor sétány, ahol a város lüktetése és a nyugalom találkozik
A Kőbánya szívében, a Ligettelek városrész egyik legélhetőbb zugában húzódik meg a Kőrösi Csoma Sándor sétány, egy olyan hely, ahol a mindennapok ritmusa és a természet csendje tökéletes harmóniában élnek. A sétány mentén árnyas fák sorakoznak, padok hívogatnak egy pillanatnyi megállásra, miközben a környék pezsgése sosem válik nyomasztóvá.
A közlekedés kiváló: néhány lépésre található a Kőbánya-Alsó vasútállomás, ahonnan a belváros 15 perc alatt elérhető. A 3-as villamos, valamint több buszjárat (9-es, 151-es, 217E) biztosítja, hogy bárhová könnyedén eljuss. A közelben óvodák, iskolák, bevásárlási lehetőségek és kulturális intézmények teszik teljessé az életet.
Ha olyan otthont keresel, ahol a város kényelme és a zöld környezet kéz a kézben jár, a Kőrösi Csoma sétányon megtalálod.


Elhelyezkedés: 1102, Budapest, X. Kerület (Ligettelek), Kőrösi Csoma Sándor sétány

Környezet: lakótelepi

Közlekedés: B9


  • Alapterület 105 m²
  • Szobák száma 3
  • Félszobák száma 2
  • Szerkezet Csúsztatott zsalus és tégla
  • Állapot Átlagos
  • Társasház állapota
  • Társasház szintjei 4 emeletes
  • Építés éve 1990
  • Felújítás éve 2014
  • Szobák típusa Külön nyíló
  • Belmagasság 265 cm
  • Konyhák száma 1
  • Konyha típusa Ablakos konyha
  • WC-k száma 2
  • Fürdőszoba szám 2
  • Fűtés típusa Távfűtés egyedi mérőórával
  • Melegvíz típusa Távhő
  • Nyílászárók típusa Műanyag
  • Nyílászárók állapota
  • Energetikai besorolás D

Eladná ingatlanát?

Teljesen megértjük, hiszen az ingatlaneladás egy komoly döntés. Kérjen visszahívást, és mi kötöttségektől mentesen tájékoztatjuk Önt a legkedvezőbb lehetőségekről. Hozzáértő ingatlan tanácsadó kollégáink készséggel állnak rendelkezésére bármilyen kérdés kapcsán.

Kérem az ingyenes tanácsadást!

Ingatlan hírek

A funkció használatához be kell lépnie.

A funkció használatához be kell lépnie.

A funkció használatához be kell lépnie.