Budapest III. Kerület, Gyógyszergyár utca

Terület85 m²

Szobák száma 3

Irányár

104 900 000 FT

Eladó Társasházi lakás

III. Kerület, Gyógyszergyár utca, 85 m²-es, társasházi lakás, 3 szobás

BUDAI TÁGAS, ERKÉLYES PANELLAKÁS ELADÓ!

Megvételre kínálom a közkedvelt III. kerületi Gyógyszergyár úti lakótelepen, egy panel építésű 4 emeletes társasház 3. emeleti lakását!
A hirdetésben szereplő valós képek a jelenlegi állapotot, míg a látványtervek a berendezett lehetőségeket (iroda, kávézó) mutatják be.

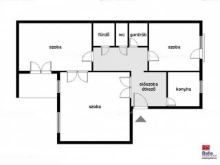
Az ingatlan 85 nm-es, 3 szobás, tágas, világos, erkélyes. A lakás elrendezése kiváló, kétirányba néző ablakai vannak, ablakos konyhával, külön étkezővel, külön fürdő-wc-vel, gardróbszobával rendelkezik.

Az ingatlanban műanyag nyílászárók vannak, légkondicionált. Fenntartása kedvező, a fűtés és a melegvíz házközponti. Korábban hosszú távon bérlők lakták, akik nagyon szerették. Az ingatlan közepes-jó állapotú.

Kiváló közlekedésű, barátságos környék. Parkolás könnyen megoldható a társasház előtt.
Saját tároló tartozik az ingatlanhoz!

Per és tehermentes!
Azonnal költözhető, birtokba vehető! Kiadásra is kiváló választás!
Megtisztelő hívását a hét minden napján fogadom és egyeztetés után mutatom!


Elhelyezkedés: 1037, Budapest, III. Kerület (Gyógyszergyár utcai ltp), Gyógyszergyár utca

Környezet: Csendes, parkos környék

Közlekedés: Kiváló közlekedés


  • Alapterület 85 m²
  • Szobák száma 3
  • Szerkezet Panel
  • Állapot Átlagos
  • Társasház állapota
  • Tájolás K
  • Társasház szintjei 4 emeletes
  • Építés éve 1981
  • Szobák típusa Egybe- és különnyíló
  • Belmagasság 270 cm
  • Konyhák száma 1
  • Konyha típusa Ablakos konyha
  • WC-k száma 1
  • Fürdőszoba szám 1
  • Födém típusa Vasbeton
  • Fűtés típusa Házközponti fűtés
  • Melegvíz típusa Központi
  • Nyílászárók típusa Műanyag
  • Nyílászárók állapota

Eladná ingatlanát?

Teljesen megértjük, hiszen az ingatlaneladás egy komoly döntés. Kérjen visszahívást, és mi kötöttségektől mentesen tájékoztatjuk Önt a legkedvezőbb lehetőségekről. Hozzáértő ingatlan tanácsadó kollégáink készséggel állnak rendelkezésére bármilyen kérdés kapcsán.

Kérem az ingyenes tanácsadást!

Hasonló ingatlanok kínálatunkból

Ingatlan hírek

A funkció használatához be kell lépnie.

A funkció használatához be kell lépnie.

A funkció használatához be kell lépnie.