Budapest XVIII. Kerület, Üllői út

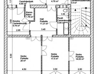
Alapterület117 m²

Szobák száma 3

Irányár

89 000 000 FT


Egyéb tulajdonságok: tehermentes, azonnal költözhető, erkély (5 m²), utcai parkolás


Eladó Társasházi lakás

XVIII. Kerület, Üllői út, 117 m²-es, társasházi lakás, 3 szobás

Nagypolgári jellegű, impozáns első emeleti ingatlan a 18. kerületben, az Üllői úton!

A 18. kerület központi részén, az Üllői úton, a Kossuth Lajos tér közelében található ez a 117 m²-es, nagypolgári hangulatú első emeleti ingatlan, amely a klasszikus városi elegancia és a modern funkcionalitás harmonikus egységét képviseli. Az ingatlan külső és belső állapota felújítandó, esztétikai és gépészeti felújítást, korszerűsítést igényel. A lakás három tágas szobából, előszobából, konyhából, kamrából, fürdőszobából és WC-ből áll, valamint saját kertrész is tartozik hozzá, amely tovább növeli az ingatlan kényelmét és értékét.
Az ingatlan egy kisebb, karakteres épületben helyezkedik el, ahol a földszinten egy üzlethelyiség, míg az udvar felé, hátrafelé kapcsolódva egy másik lakás található. A hirdetett lakás az épület teljes első emeletét elfoglalja, önálló bejárattal az udvar felől, ami különösen hangsúlyossá teszi a privát, független jellegét.

A tágas terek, a magas belmagasság és a klasszikus elrendezés a nagypolgári építészet időtálló értékeit tükrözik. Elhelyezkedése és adottságai révén kiválóan alkalmas ügyvédi iroda vagy orvosi rendelő kialakítására, mivel elegáns megjelenése és jól tagolható helyiségei professzionális, mégis otthonos atmoszférát biztosítanak. Ugyanakkor a lakás tágas családi otthonként is ideális választás lehet azok számára, akik értékelik a nagyvonalú térérzetet és a klasszikus városi miliőt.

A környék infrastruktúrája kimagaslóan fejlett: a közlekedési lehetőségek – busz, villamos, vonat – néhány percen belül elérhetők, a belváros pedig autóval és tömegközlekedéssel egyaránt gyorsan, kényelmesen megközelíthető. Az elhelyezkedés, a környezet rendezettsége és a környék kiemelkedő presztízse tovább növelik az ingatlan értékét és sokoldalú felhasználhatóságát.

Ajánljuk mindazoknak, akik értékálló és jól hasznosítható ingatlant keresnek.

Amennyiben felkeltette a hirdetés az érdeklődését kérem, hogy keressen bizalommal!


Elhelyezkedés: 1181, Budapest, XVIII. Kerület (Bókaytelep), Üllői út

Környezet: Elhelyezkedése és adottságai révén kiválóan alkalmas ügyvédi iroda vagy orvosi rendelő kialakítására, mivel elegáns megjelenése és jól tagolható helyiségei professzionális, mégis otthonos atmoszférát biztosítanak. Ugyanakkor a lakás tágas családi otthonként is ideális választás lehet azok számára, akik értékelik a nagyvonalú térérzetet és a klasszikus városi miliőt.

Közlekedés: A környék infrastruktúrája kimagaslóan fejlett: a közlekedési lehetőségek – busz, villamos, vonat – néhány percen belül elérhetők, a belváros pedig autóval és tömegközlekedéssel egyaránt gyorsan, kényelmesen megközelíthető. Az elhelyezkedés, a környezet rendezettsége és a környék kiemelkedő presztízse tovább növelik az ingatlan értékét és sokoldalú felhasználhatóságát.


  • Alapterület 117 m²
  • Szobák száma 3
  • Szerkezet Tégla régi építésű
  • Állapot Felújítandó
  • Társasház állapota Felújítandó
  • Tájolás ÉK
  • Lakások / házrészek száma 2
  • Társasház szintjei 1 emeletes
  • Szobák típusa Egybe- és különnyíló
  • Belmagasság 305 cm
  • Konyhák száma 1
  • Konyha típusa Ablakos konyha
  • WC-k száma 1
  • Fürdőszoba szám 1
  • Fűtés típusa Gázkonvektor fűtés
  • Melegvíz típusa Villanybojler
  • Nyílászárók állapota felújítandó

Eladná ingatlanát?

Teljesen megértjük, hiszen az ingatlaneladás egy komoly döntés. Kérjen visszahívást, és mi kötöttségektől mentesen tájékoztatjuk Önt a legkedvezőbb lehetőségekről. Hozzáértő ingatlan tanácsadó kollégáink készséggel állnak rendelkezésére bármilyen kérdés kapcsán.

Kérem az ingyenes tanácsadást!

Ingatlan hírek

A funkció használatához be kell lépnie.

A funkció használatához be kell lépnie.

A funkció használatához be kell lépnie.